Nyelv:
Kezdd el!
Eladó
Kiadó
Tulajdonos vagyok
Ingatlanos vagyok
Zoomlla-funkciók
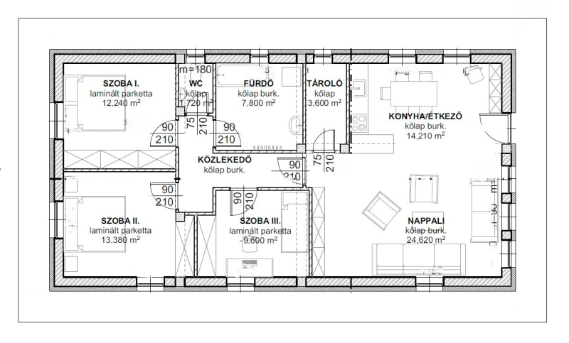
Eladó ház Újhartyán 94m2
2367 Újhartyán
ID: 73458
79.9 M Ft (282 E Ft/m2)
Terület
283 m2
Hálószobák
4
Ingatlan adatok
Típus: Ház
Terület: 94 m2
Erkély / Terasz területe: 378 m2
Hálószobák: 4
Építés éve: 20+ éve
Ár: 79 900 000 Ft
Ár/m2: 282 E Ft/m2
Emelet: 1+ emelet
Leírás
Újhartyánon nappali+3szobás új építésű,külön elkerített 378nm-es saját telekkel rendelkező 94nm-es ház eladó ! Az ingatlan a műszaki tartalmából kiderül,hogy magas műszaki tartalommal rendelkezik.
- Műszaki Leírás:
Alapozás : C20 24KK-betonnal, vasalattal, GV35 vízszigeteléssel, 10 cm lábazati hungarocellel, Revco lábazati vakolattal
Fal: Porother
...
+ Tovább olvasom
Jellemzők
  • Légkondícináló
  • Erkély
  • Közös kert
Lokáció
2367 Újhartyán