Nyelv:
Kezdd el!
Eladó
Kiadó
Tulajdonos vagyok
Ingatlanos vagyok
Zoomlla-funkciók
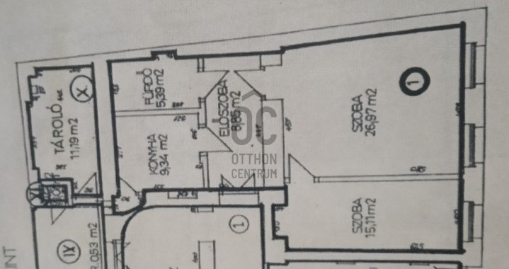
Eladó lakás Budapest V. Belváros 66m2
1056 Budapest
ID: 73408
71.9 M Ft (1.1 M Ft/m2)
Terület
66 m2
Hálószobák
2
Ingatlan adatok
Típus: Lakás
Terület: 66 m2
Hálószobák: 2
Építés éve: 20+ éve
Ár: 71 900 000 Ft
Ár/m2: 1.1 M Ft/m2
Emelet: 1+ emelet
Kilátás az ingatlanból: Város
Leírás
Eladásra kínálok a belvárosban egy két szobás utcai ingatlant.
Mind a két szoba utcai nézetű, így igen világos lakásról beszélünk. Műszakilag 7 évvel ezelőtt teljeskörű felújítás történt.
A fűtésről gáz cirkó gondoskodik.
Igen nagy előnye, hogy kis lakás létszámú házról beszélünk. Mindössze 7 lakás van az épületben.
A ház nem védett, így csak az ut
...
+ Tovább olvasom
Lokáció
1056 Budapest