Nyelv:
Kezdd el!
Eladó
Kiadó
Tulajdonos vagyok
Ingatlanos vagyok
Zoomlla-funkciók
Eladó ház Nagykanizsa 5000m2
8800 Nagykanizsa
ID: 73146
350 M Ft (70 E Ft/m2)
Terület
5000 m2
Hálószobák
0
Ingatlan adatok
Típus:
Terület: 5000 m2
Hálószobák: 0
Építés éve: 20+ éve
Ár: 350 000 000 Ft
Ár/m2: 70 E Ft/m2
Emelet: Felső szint
Leírás
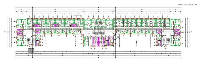
Eladásra kínálom a 7-es út melletti régi laktanya épületét. Az épület kb bruttó 5000m2.

Az épület kívülről 10cm-es dryvit  rendszert kapott (10 cm hőszigetelést , háló ,valamint színt, dörzsölt vakolatot ) . Az új lapos tető norvég vákuumfóliás, alatta 15-25cm járható szigeteléssel csepegtető lemezzel és új csapadék csatornával. Az összes külső ny
...
+ Tovább olvasom
Lokáció
8800 Nagykanizsa