Nyelv:
Kezdd el!
Eladó
Kiadó
Tulajdonos vagyok
Ingatlanos vagyok
Zoomlla-funkciók
Eladó lakás Budapest XI. Kelenföld 47m..
1119 Budapest
ID: 73143
108.4 M Ft (2.3 M Ft/m2)
Terület
47 m2
Hálószobák
2
Ingatlan adatok
Típus: Lakás
Terület: 47 m2
Hálószobák: 2
Építés éve: Max. 5 éve
Ár: 108 400 000 Ft
Ár/m2: 2.3 M Ft/m2
Emelet: 1+ emelet
Kilátás az ingatlanból: Park
Leírás
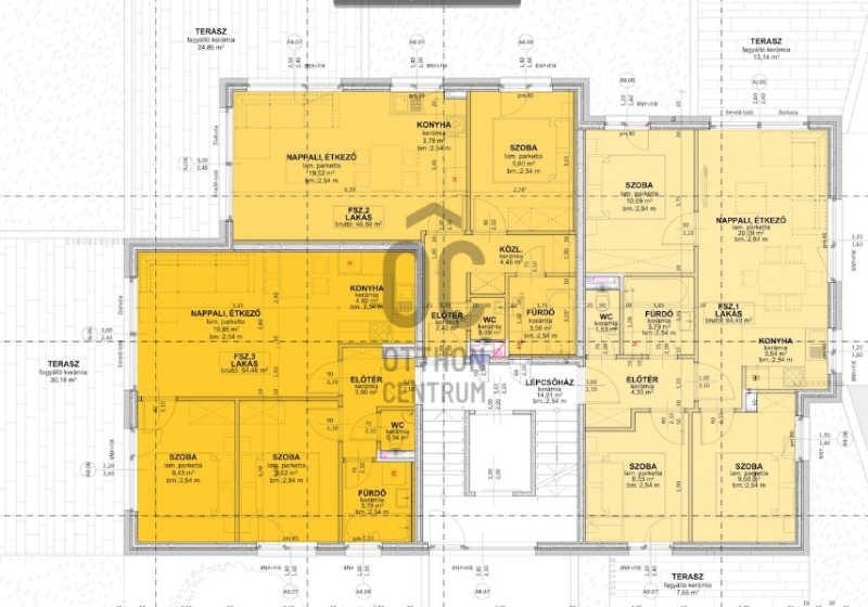
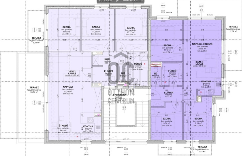
Projekt bemutatása

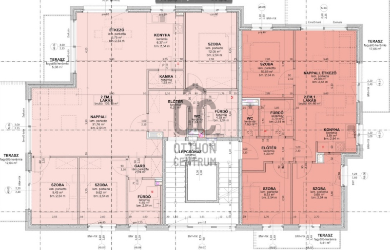
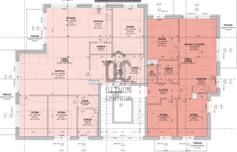
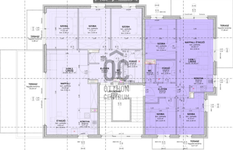
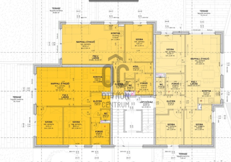
2024- ben induló építkezés keretében, kiváló kertvárosi környezetben lévő következő beruházásunkat, melynek keretében 10 darab nagy erkélyekkel, tereszokkal rendelkező társasházi lakást építünk. Az átadás várható ideje 2025 december.

Lakások:
Fszt./1 : 4 szoba, 64,49m2 + 2 terasz (13,14+7,65m2) kert kapcsolattal
Fszt./2: 2
...
+ Tovább olvasom
Lokáció
1119 Budapest