Nyelv:
Kezdd el!
Eladó
Kiadó
Tulajdonos vagyok
Ingatlanos vagyok
Zoomlla-funkciók
Eladó lakás Budapest XVII. Rákoskeresz..
1173 Budapest, Rákoskeresztúr
ID: 73055
57.9 M Ft (1.1 M Ft/m2)
Terület
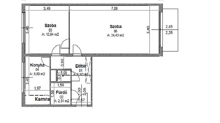
54 m2
Hálószobák
2
Ingatlan adatok
Típus: Lakás
Terület: 54 m2
Hálószobák: 2
Építés éve: 20+ éve
Ár: 57 900 000 Ft
Ár/m2: 1.1 M Ft/m2
Garázs: 1
Emelet: 1+ emelet
Kilátás az ingatlanból: Park
Leírás
XVII. KERÜLETBEN: KASZÁLÓ UTCÁBAN, VÁROSKÖZPONTHOZ KÖZEL, ELADÓ EGY III EMELETI, ERKÉLYES, 54 M2-ES, KÖRBENAPOZOTT 2 SZOBÁS PANELLAKÁS, 17 M2-ES GARÁZZSAL, ILLETVE A GARÁZS ELŐTT TOVÁBBI 2 AUTÓBEÁLLÓVAL.

A LAKÁS JELLEMZŐI:

Állapotát tekintve, jó állapotú. A nyílászárók minden helyiségben ki lettek cserélve, redőnyösek. A konyha, világos, nagy ab
...
+ Tovább olvasom
Lokáció
1173 Budapest, Rákoskeresztúr