Nyelv:
Kezdd el!
Eladó
Kiadó
Tulajdonos vagyok
Ingatlanos vagyok
Zoomlla-funkciók
Eladó lakás Budapest XII. Németvölgy 7..
1124 Budapest, Kiss János altábornagy utca
ID: 72985
89.9 M Ft (1.1 M Ft/m2)
Terület
79 m2
Hálószobák
3
Ingatlan adatok
Típus: Lakás
Terület: 79 m2
Hálószobák: 3
Építés éve: 20+ éve
Ár: 89 900 000 Ft
Ár/m2: 1.1 M Ft/m2
Emelet: 1+ emelet
Kilátás az ingatlanból: Város
Leírás
Kizárólag Irodánk kínálatában!

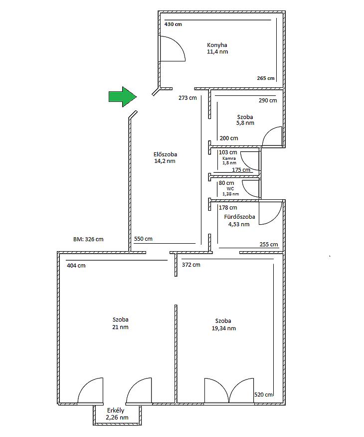
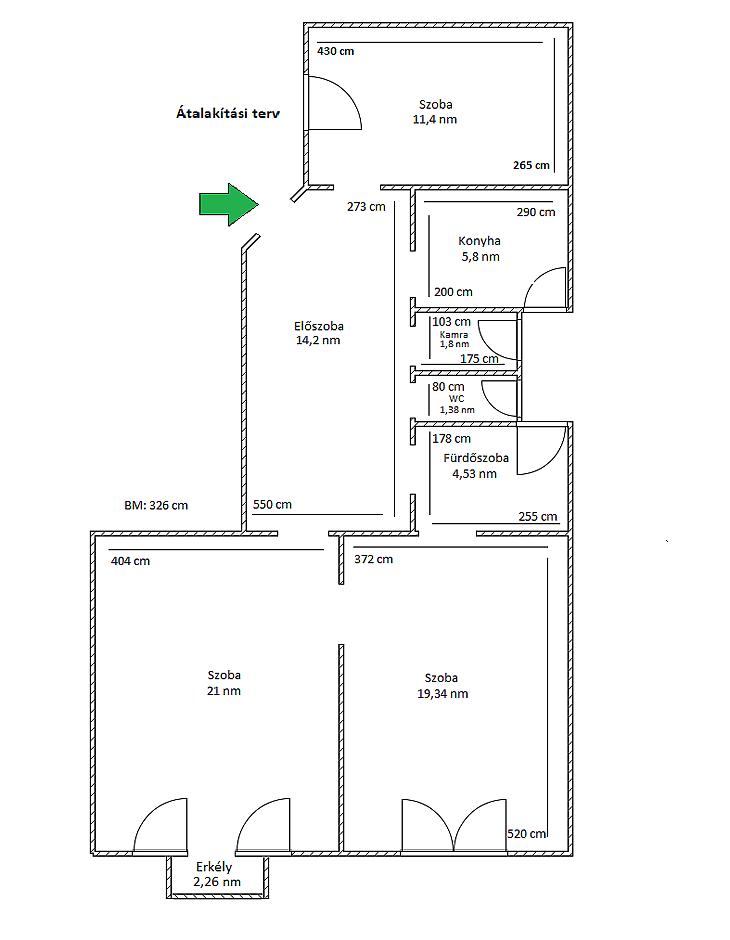
Eladó Németvölgyben, a Kiss János altábornagy utcában egy 3 szobás, erkélyes, felújítandó, akadálymentesített lakás.

A lakás 78 nm, jó elosztású. Szobái külön megközelíthetőek, amelyek könnyen átalakíthatók a felújítás során.

Jelenlegi fűtési módja konvektoros, de van lehetőség a fűtés korszerűsítésére, cirkó fűtés
...
+ Tovább olvasom
Lokáció
1124 Budapest, Kiss János altábornagy utca