Nyelv:
Kezdd el!
Eladó
Kiadó
Tulajdonos vagyok
Ingatlanos vagyok
Zoomlla-funkciók
Eladó ház Dunakeszi 133m2
2120 Dunakeszi, Dunakeszi
ID: 72897
144.9 M Ft (512 E Ft/m2)
Terület
283 m2
Hálószobák
5
Ingatlan adatok
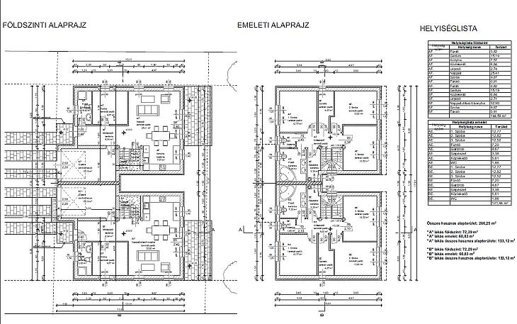
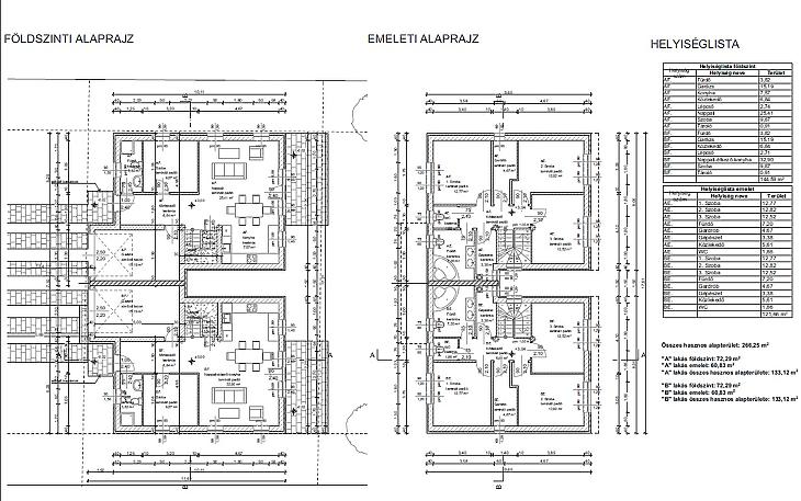
Típus: Ház
Terület: 133 m2
Erkély / Terasz területe: 300 m2
Hálószobák: 5
Építés éve: Max. 5 éve
Ár: 144 900 000 Ft
Ár/m2: 512 E Ft/m2
Garázs: 1
Emelet: 1+ emelet
Kilátás az ingatlanból: Park
Leírás
Dunakeszi központi részén, kertvárosi utcában eladásra kínálunk egy újépítésű, minőségi anyagokból készült, 300 nm-es telken lévő, kétszintes ikerház felet.

Az ikerház felek a földszinten csak garázsnál, az emeleten pedig csak a fürdőszobánál érnek össze.

A ház 30 centis Porotherm téglából épül, külsőleg 10 cm-es (expandált polisztirol hab) szige
...
+ Tovább olvasom
Lokáció
2120 Dunakeszi, Dunakeszi