Nyelv:
Kezdd el!
Eladó
Kiadó
Tulajdonos vagyok
Ingatlanos vagyok
Zoomlla-funkciók
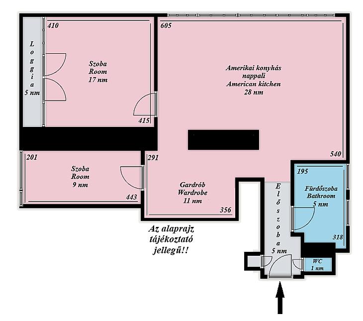
Eladó lakás Budapest II. Vérhalom 77m2..
1025 Budapest, Vend utca
ID: 72869
141.9 M Ft (1.8 M Ft/m2)
Terület
77 m2
Hálószobák
3
Ingatlan adatok
Típus: Lakás
Terület: 77 m2
Hálószobák: 3
Építés éve: 20+ éve
Ár: 141 900 000 Ft
Ár/m2: 1.8 M Ft/m2
Garázs: 1
Emelet: Felső szint
Kilátás az ingatlanból: Park
Leírás
Eladó egy első emeleti világos , amerikai konyhával, 2 külön nyíló szobával, illetve loggiával ellátott lakás Vérhalmon.



 A lakás jellemzőibe beletartozik az amerikai konyhás nappali mely tágas és világos. Az open space kialakítás lehetővé teszi, hogy a konyha és a nappali egy légtérben találkozzon, így a közös időtöltés még élvezetesebbé v
...
+ Tovább olvasom
Lokáció
1025 Budapest, Vend utca