Nyelv:
Kezdd el!
Eladó
Kiadó
Tulajdonos vagyok
Ingatlanos vagyok
Zoomlla-funkciók
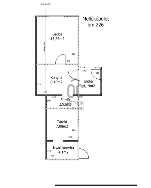
Eladó ház Szigetszentmiklós 108m2
2310 Szigetszentmiklós
ID: 72629
56.8 M Ft (94 E Ft/m2)
Terület
606 m2
Hálószobák
5
Ingatlan adatok
Típus: Ház
Terület: 108 m2
Erkély / Terasz területe: 996 m2
Hálószobák: 5
Építés éve: 20+ éve
Ár: 56 800 000 Ft
Ár/m2: 94 E Ft/m2
Emelet: 1+ emelet
Leírás
Szigetszentmiklós Lakihegyen családi ház

HÁZ:
- 108 nm lakótér
- Nappali + 3 szoba, 1 fürdőszoba, gardrób
- hűtő-fűtő klíma
- GÁZKAZÁN LESZERELVE
- 1990-ban épült téglából, hungarocell szigeteléssel
- cserép tetőfedés

TELEK:
- 996 nm kert
- több autónak is kialakítható parkoló
- körbekerítve
- összközműves

CSAK KÉSZPÉNZZEL VÁSÁROLHATÓ MEG!
AZ
...
+ Tovább olvasom
Lokáció
2310 Szigetszentmiklós