Nyelv:
Kezdd el!
Eladó
Kiadó
Tulajdonos vagyok
Ingatlanos vagyok
Zoomlla-funkciók
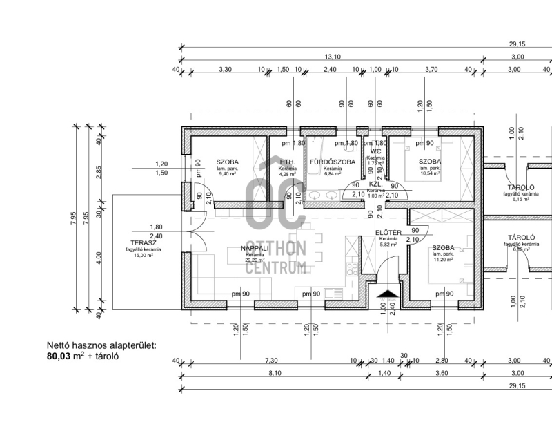
Eladó ház Kiskunlacháza 86m2
2340 Kiskunlacháza
ID: 72626
64.7 M Ft (274 E Ft/m2)
Terület
236 m2
Hálószobák
4
Ingatlan adatok
Típus: Ház
Terület: 86 m2
Erkély / Terasz területe: 300 m2
Hálószobák: 4
Építés éve: Max. 5 éve
Ár: 64 700 000 Ft
Ár/m2: 274 E Ft/m2
Emelet: 1+ emelet
Leírás
Projekt bemutatása

Kiskunlacházán most épülő ikerház eladó!

- csak tárolónál kapcsolódik
- téglából épül
- hőszivattyús fűtés
- nappali + 3 szoba
- terasz

"A" lakás: 86,03 nm
"B" lakás: 86,06 nm

Hitel, CSOK felvehető!
20%-tól foglalózható

További részletekért kérem hívjon!

---
További információk:
...
+ Tovább olvasom
Lokáció
2340 Kiskunlacháza