Nyelv:
Kezdd el!
Eladó
Kiadó
Tulajdonos vagyok
Ingatlanos vagyok
Zoomlla-funkciók
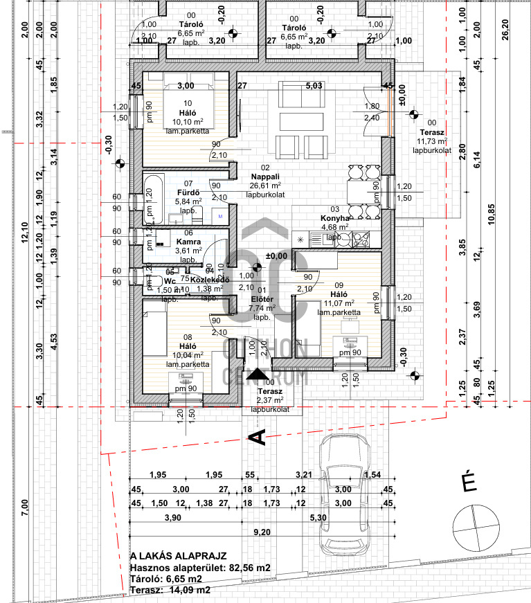
Eladó ház Kiskunlacháza 89m2
2340 Kiskunlacháza
ID: 72624
66.9 M Ft (280 E Ft/m2)
Terület
239 m2
Hálószobák
4
Ingatlan adatok
Típus: Ház
Terület: 89 m2
Erkély / Terasz területe: 300 m2
Hálószobák: 4
Építés éve: Max. 5 éve
Ár: 66 900 000 Ft
Ár/m2: 280 E Ft/m2
Emelet: 1+ emelet
Leírás
Projekt bemutatása

Kiskunlacházán most épülő ikerházak eladók!

- téglából épül
- nappali + 3 szobás
- csak tárolónál kapcsolódik
- hőszivattyús fűtés

Várható átadás kb. 2025 harmadik negyedév

CSOK, hitel felvehető, 20%-tól foglalható!

További információkért kérem hívjon!

---
További információk:
...
+ Tovább olvasom
Lokáció
2340 Kiskunlacháza