Nyelv:
Kezdd el!
Eladó
Kiadó
Tulajdonos vagyok
Ingatlanos vagyok
Zoomlla-funkciók
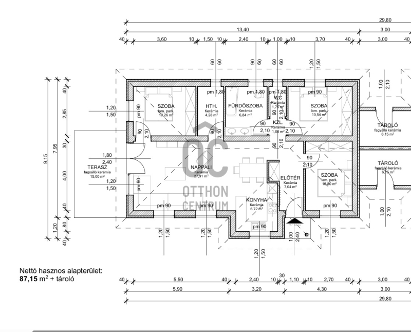
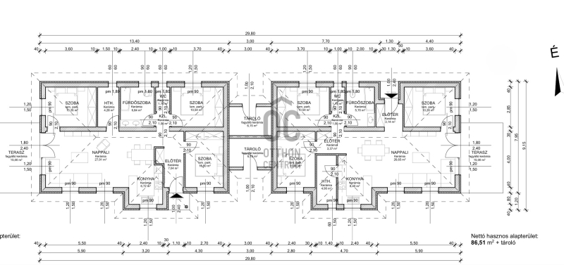
Eladó ház Kiskunlacháza 93m2
2340 Kiskunlacháza
ID: 72616
69.9 M Ft (261 E Ft/m2)
Terület
268 m2
Hálószobák
4
Ingatlan adatok
Típus: Ház
Terület: 93 m2
Erkély / Terasz területe: 350 m2
Hálószobák: 4
Építés éve: Max. 5 éve
Ár: 69 850 000 Ft
Ár/m2: 261 E Ft/m2
Emelet: 1+ emelet
Leírás
Projekt bemutatása

Kiskunlacházán most épülő ikerházak eladók!

- 2025-be épül téglából
- nappali + 3 szobás
- hőszivattyús fűtés
- csak tárolónál kapcsolódik

CSOK, hitel felvehető
20%-tól már most foglalható!
Várható átadás kb. 2025 harmadik negyedév

További részletekért kérem hívjon!

---
További információk:
...
+ Tovább olvasom
Lokáció
2340 Kiskunlacháza