Nyelv:
Kezdd el!
Eladó
Kiadó
Tulajdonos vagyok
Ingatlanos vagyok
Zoomlla-funkciók
Eladó ház Debrecen 1068m2
4028 Debrecen
ID: 67381
150 M Ft (140 E Ft/m2)
Terület
1068 m2
Hálószobák
0
Ingatlan adatok
Típus:
Terület: 1068 m2
Hálószobák: 0
Építés éve: 20+ éve
Ár: 150 000 000 Ft
Ár/m2: 140 E Ft/m2
Emelet: Felső szint
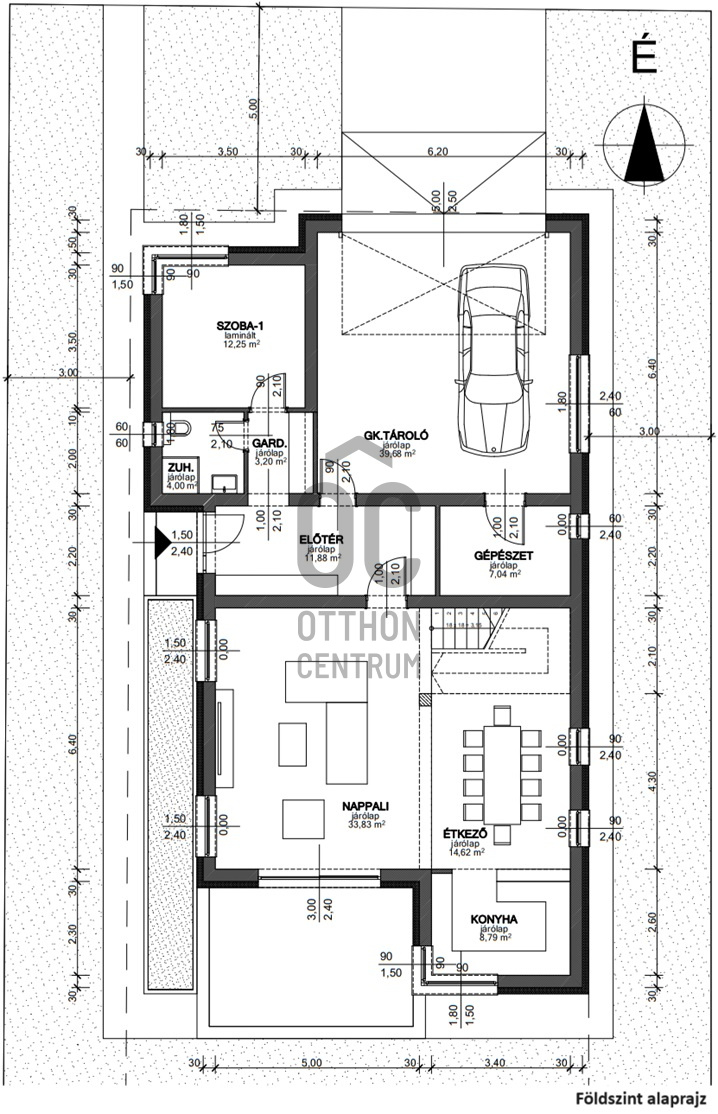
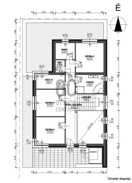
Leírás
Keresi még a Nagyerdő közelében azt a területet, ami ideális egy családi ház vagy ikerház építésére, akkor megtalálta!!

Az üres telek 1068 nm-es és teljes közművel ellátott:

- 30%-os beépíthetőség szabadonálló beépítési móddal
- 7,5 m magasság
- 19 m utcafront.

A kertvárosias hangulat, a Nagyerdő közelsége és az értékállóság mind adott, így Önne
...
+ Tovább olvasom
Lokáció
4028 Debrecen