Nyelv:
Kezdd el!
Eladó
Kiadó
Tulajdonos vagyok
Ingatlanos vagyok
Zoomlla-funkciók
Eladó lakás Budapest XI. Sashegy XI...
1112 Budapest
ID: 66806
357.6 M Ft (3.5 M Ft/m2)
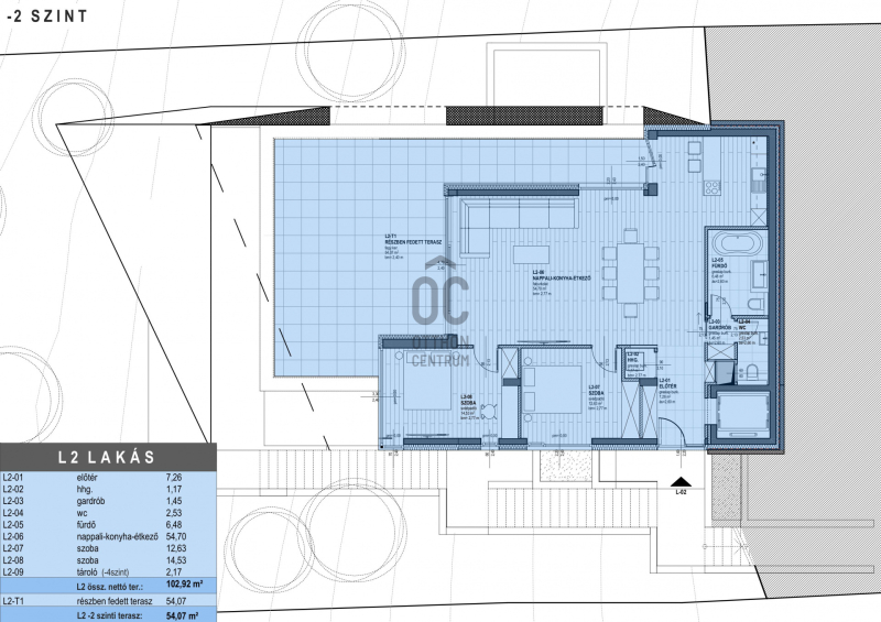
Terület
103 m2
Hálószobák
3
Ingatlan adatok
Típus: Lakás
Terület: 103 m2
Hálószobák: 3
Építés éve: Max. 5 éve
Ár: 357 583 050 Ft
Ár/m2: 3.5 M Ft/m2
Emelet: Felső szint
Kilátás az ingatlanból: Park
Leírás
3 lakásos, prémium újépítésű, örök panorámás, liftes, garázsos, okos lakások 2024 II-III negyedévi költözéssel, kulcsrakészen eladók,L 2-es lakás.

Megbízható, leinformálható kivitelezőtől, zsákutca végén természetvédelmi terület határán, a kilátótól mindössze 300 méterre található álmai otthona. Tágas nyitott terek, sok fény, benapozott óriás te
...
+ Tovább olvasom
Lokáció
1112 Budapest