Nyelv:
Kezdd el!
Eladó
Kiadó
Tulajdonos vagyok
Ingatlanos vagyok
Zoomlla-funkciók
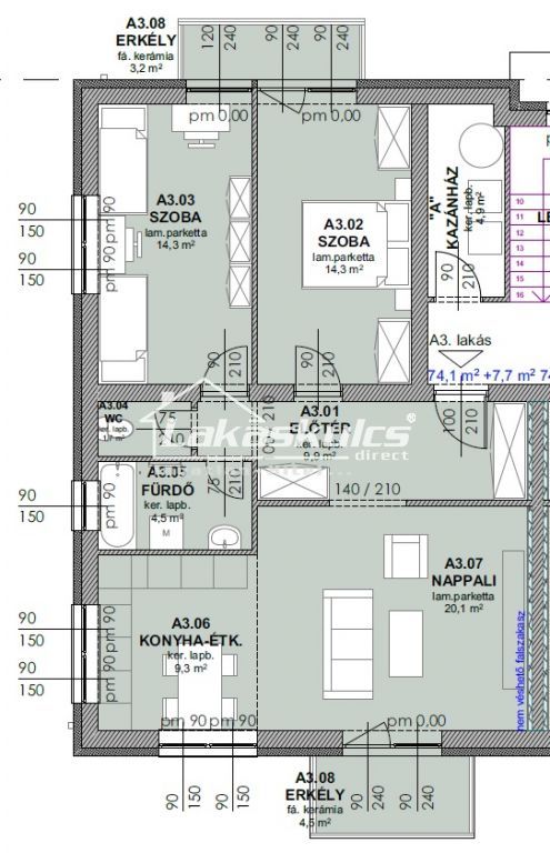
Eladó lakás Sopron 74m2
9400 Sopron
ID: 66289
75 M Ft (1 M Ft/m2)
Terület
74 m2
Hálószobák
3
Ingatlan adatok
Típus: Lakás
Terület: 74 m2
Hálószobák: 3
Építés éve: Max. 5 éve
Ár: 75 000 000 Ft
Ár/m2: 1 M Ft/m2
Emelet: 1+ emelet
Leírás
EGEREDI DOMBON, ÚJ ÉPÍTÉSŰ LAKÁS, GARÁZS ÉS TÁROLÓ VÁSÁRLÁSI LEHETŐSÉGGEL ELADÓ! Sopronban a Lővérek szélen az Egeredi dombon, ÚJ ÉPÍTÉSŰ, 1 emeleti, 74,1 nm-es, am.konyha-nappali+2 szobás, 2 erkélyes lakás,  igény szerinti kialakítással, garázs és tároló, vásárlási lehetőséggel eladó.  kulcsrakész ár: 75.000.000-Ft.  érd: 06 (20)939-77-45

...
+ Tovább olvasom
Jellemzők
  • Erkély
  • Raktár
Lokáció
9400 Sopron