Nyelv:
Kezdd el!
Eladó
Kiadó
Tulajdonos vagyok
Ingatlanos vagyok
Zoomlla-funkciók
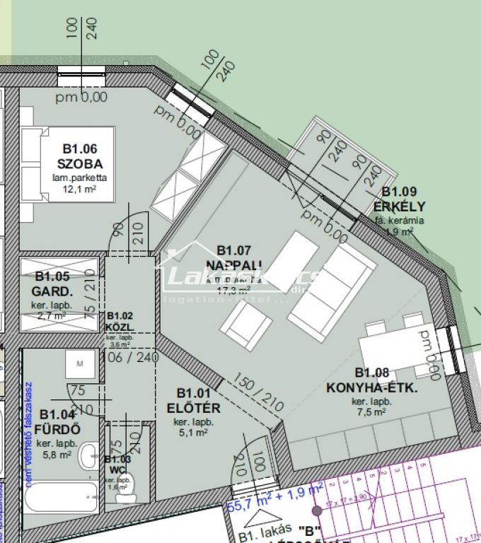
Eladó lakás Sopron 55m2
9400 Sopron
ID: 66288
59 M Ft (1.1 M Ft/m2)
Terület
55 m2
Hálószobák
2
Ingatlan adatok
Típus: Lakás
Terület: 55 m2
Hálószobák: 2
Építés éve: Max. 5 éve
Ár: 59 000 000 Ft
Ár/m2: 1.1 M Ft/m2
Emelet: 1+ emelet
Leírás
EGEREDI DOMBON, ÚJ ÉPÍTÉSŰ LAKÁS, GARÁZS ÉS TÁROLÓ VÁSÁRLÁSI LEHETŐSÉGGEL ELADÓ! Sopronban a Lővérek szélen az Egeredi dombon, ÚJ ÉPÍTÉSŰ, magasföldszinti 55,7 nm-es, am.konyha-nappali+1 szobás, KERTKAPCSOLATOS (75 nm) lakás, terasszal igény szerinti kialakítással, garázs és tároló, vásárlási lehetőséggel eladó.  kulcsrakész ár: 59 M Ft.  érd: 06 (...
+ Tovább olvasom
Jellemzők
  • Erkély
  • Raktár
Lokáció
9400 Sopron