Nyelv:
Kezdd el!
Eladó
Kiadó
Tulajdonos vagyok
Ingatlanos vagyok
Zoomlla-funkciók
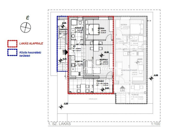
Eladó lakás Siófok 52m2
8600 Siófok
ID: 66177
73 M Ft (1.4 M Ft/m2)
Terület
52 m2
Hálószobák
1+1
Ingatlan adatok
Típus: Lakás
Terület: 52 m2
Hálószobák: 1+1
Építés éve: Max. 5 éve
Ár: 73 027 000 Ft
Ár/m2: 1.4 M Ft/m2
Emelet: 1+ emelet
Leírás
FÖLDSZINTI LAKÁS NAGY TERASSZAL ÉS SAJÁT KERTRÉSSZEL
Az ingatlan 568 m2-es telken, családiházas övezetben, egy 4 (vagy 3) lakásos társasház, mely egy 1990-es években épült családi házból kerül teljes mértékben átalakításra.
A kétszintes épületben a mai kornak megfelelően modern stílusban, magas színvonalúan felújított négy, ill. három lakás kerül k
...
+ Tovább olvasom
Jellemzők
  • Erkély
Lokáció
8600 Siófok