Nyelv:
Kezdd el!
Eladó
Kiadó
Tulajdonos vagyok
Ingatlanos vagyok
Zoomlla-funkciók
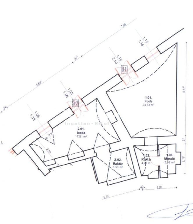
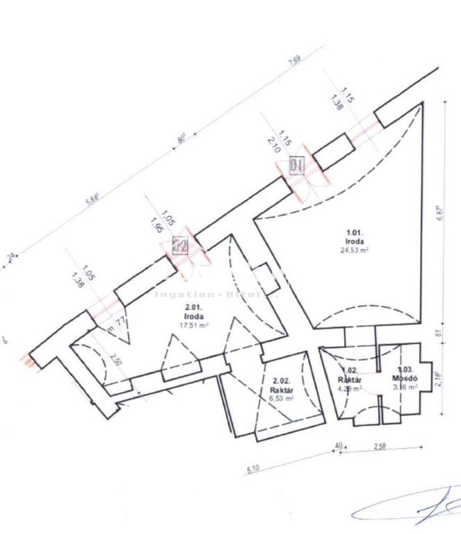
Eladó ház Sopron 56m2
9400 Sopron
ID: 66047
19.9 M Ft (355 E Ft/m2)
Terület
56 m2
Hálószobák
0
Ingatlan adatok
Típus:
Terület: 56 m2
Hálószobák: 0
Építés éve: 20+ éve
Ár: 19 900 000 Ft
Ár/m2: 355 E Ft/m2
Emelet: 1+ emelet
Leírás
Sopron belvárosában az Ógabona téren, utcafronti, 2 bejárattal rendelkező, 56 nm-es, vizesblokkal kialakított, riasztó rendszerrel ellátott üzlethelyiség/iroda gyors költözéssel eladó. Ir.ár: 19,99 M Ft. érd: 06 (20)939-7745

---
További információk:
Lokáció
9400 Sopron