Nyelv:
Kezdd el!
Eladó
Kiadó
Tulajdonos vagyok
Ingatlanos vagyok
Zoomlla-funkciók
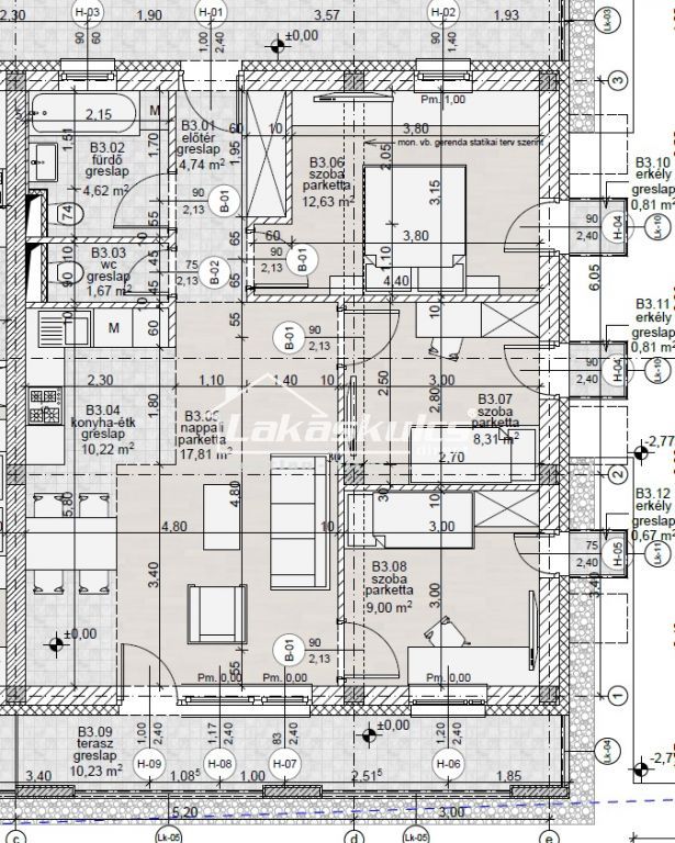
Eladó lakás Sopron 75m2
9400 Sopron
ID: 66013
72.9 M Ft (972 E Ft/m2)
Terület
75 m2
Hálószobák
4
Ingatlan adatok
Típus: Lakás
Terület: 75 m2
Hálószobák: 4
Építés éve: Max. 5 éve
Ár: 72 900 000 Ft
Ár/m2: 972 E Ft/m2
Emelet: 1+ emelet
Leírás
EGEREDI DOMBON, ÚJ ÉPÍTÉSŰ LAKÁS, SAJÁT KERTTEL ELADÓ! Sopronban a Lővérek szélen az Egeredi dombon, ÚJ ÉPÍTÉSŰ, magasföldszinti 75 nm-es, am.konyha-nappali+3 szobás, nagy teraszos lakás, 110 nm-es saját kerttel, igény szerinti kialakítással, garázs és tároló, vásárlási lehetőséggel eladó.  kulcsrakész ár: 72,9 M Ft. (garázs: 6 M Ft./db. és tároló:...
+ Tovább olvasom
Jellemzők
  • Erkély
  • Raktár
Lokáció
9400 Sopron