Nyelv:
Kezdd el!
Eladó
Kiadó
Tulajdonos vagyok
Ingatlanos vagyok
Zoomlla-funkciók
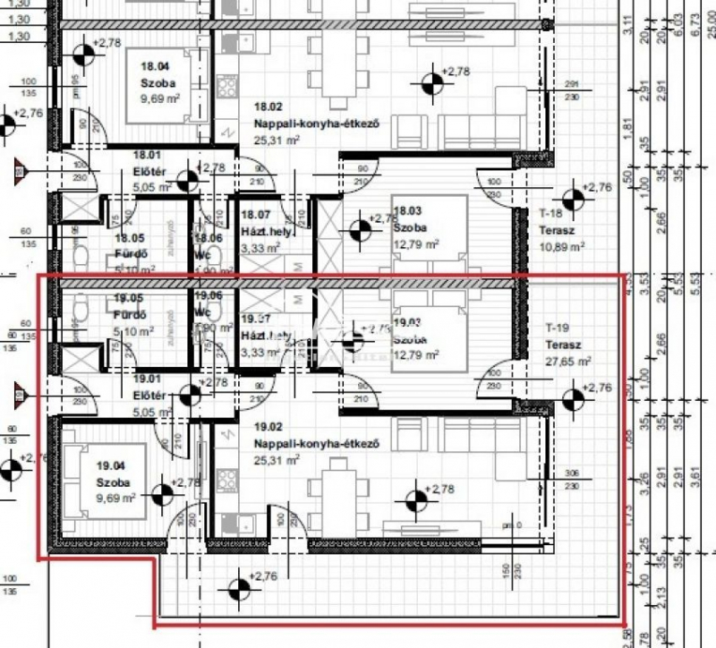
Eladó lakás Siófok 66m2
8600 Siófok
ID: 65862
121.5 M Ft (1.8 M Ft/m2)
Terület
66 m2
Hálószobák
3
Ingatlan adatok
Típus: Lakás
Terület: 66 m2
Hálószobák: 3
Építés éve: 20+ éve
Ár: 121 500 000 Ft
Ár/m2: 1.8 M Ft/m2
Emelet: 1+ emelet
Leírás
LUXUSLAKÁS A BALATON PARTON!
A lakások jól átgondolt mérete, az épület elhelyezkedése a páratlanul szép vízparton, a parkosított kert a kültéri medencével és a védett autóbeállási lehetőséggel az ott lakók komfortérzetét maximálisan szolgálja.
Az épület műszaki paraméterei, mint mindig, a beruházó megszokott igényességét és precizitását tükrözi.
A
...
+ Tovább olvasom
Jellemzők
  • Erkély
Lokáció
8600 Siófok