Nyelv:
Kezdd el!
Eladó
Kiadó
Tulajdonos vagyok
Ingatlanos vagyok
Zoomlla-funkciók
Eladó ház Pilisszentkereszt 928m2
2098 Pilisszentkereszt
ID: 65473
650 M Ft (700 E Ft/m2)
Terület
928 m2
Hálószobák
0
Ingatlan adatok
Típus:
Terület: 928 m2
Hálószobák: 0
Építés éve: 20+ éve
Ár: 650 000 000 Ft
Ár/m2: 700 E Ft/m2
Emelet: Felső szint
Leírás
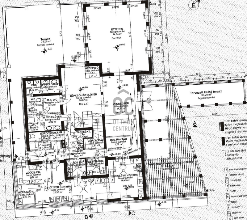
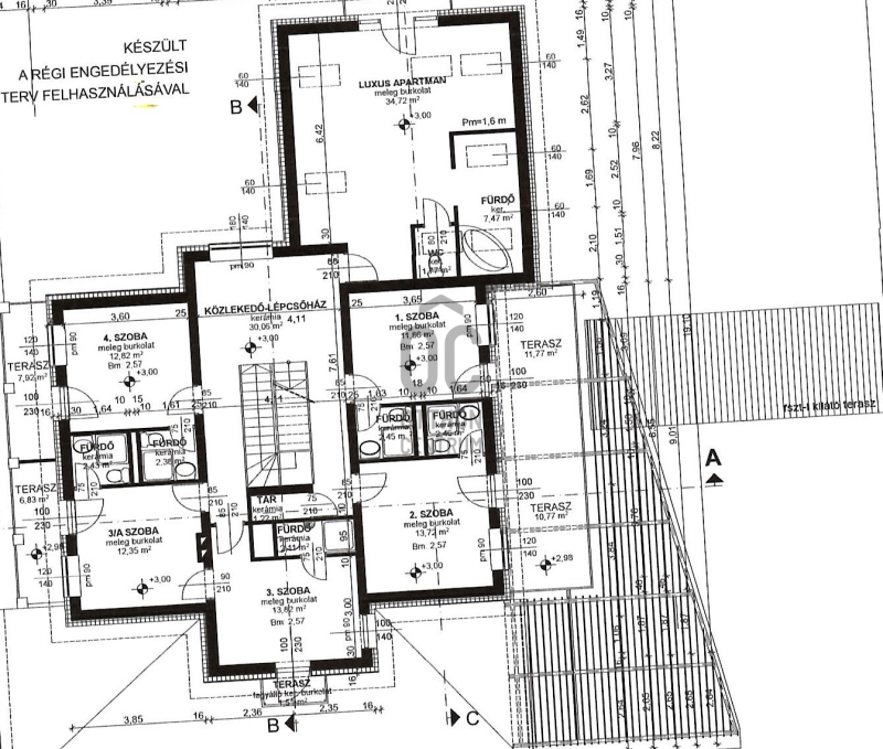
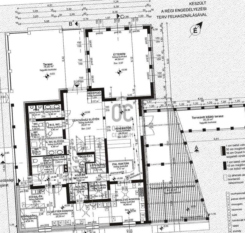
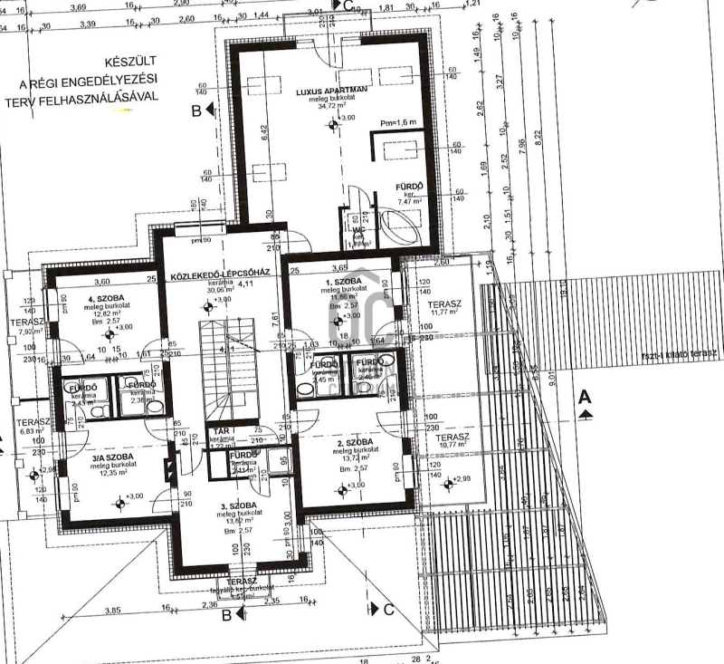
Pilisszentkereszt, DOBOGÓKŐ, „PLATÁN” panzió és étterem eladó

A Platán Panzió és étterem jól bevezetett, rengeteg visszatérő vendéggel és közel 100%-os kihasználtsággal üzemel.

PLATÁN PANZIÓ- ÉTTEREM

- 928 nm 4 szinten
- 3255 nm telek
- 10 szoba/apartman saját fürdőszobákkal + teljes kiszolgáló kapacitással, parkolóval
- luxus apartmanok + n
...
+ Tovább olvasom
Lokáció
2098 Pilisszentkereszt