Nyelv:
Kezdd el!
Eladó
Kiadó
Tulajdonos vagyok
Ingatlanos vagyok
Zoomlla-funkciók
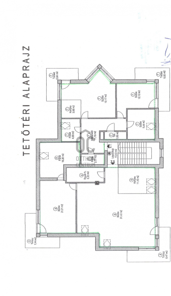
Eladó lakás Piliscsaba 86m2
2081 Piliscsaba
ID: 65459
69.9 M Ft (813 E Ft/m2)
Terület
86 m2
Hálószobák
3
Ingatlan adatok
Típus: Lakás
Terület: 86 m2
Hálószobák: 3
Építés éve: Max. 20 éve
Ár: 69 900 000 Ft
Ár/m2: 813 E Ft/m2
Emelet: Felső szint
Kilátás az ingatlanból: Park
Leírás
Piliscsaba, Magdolna -völgyi lakópark egyik társasház második emeletén két terasszal, ezáltal gyönyörű panorámával rendelkező, tágas 3 szobás lakást kínálunk eladásra .

Az ingatlan egyik terasza K-i míg a másik terasz NY-i fekvésű.
Nettó 86 nm.
A lakás rezsi költsége alacsony.
Az otthon melegét cirkófűtés biztosítja.
Hűtő-fűtő klíma kiépítve
...
+ Tovább olvasom
Lokáció
2081 Piliscsaba