Nyelv:
Kezdd el!
Eladó
Kiadó
Tulajdonos vagyok
Ingatlanos vagyok
Zoomlla-funkciók
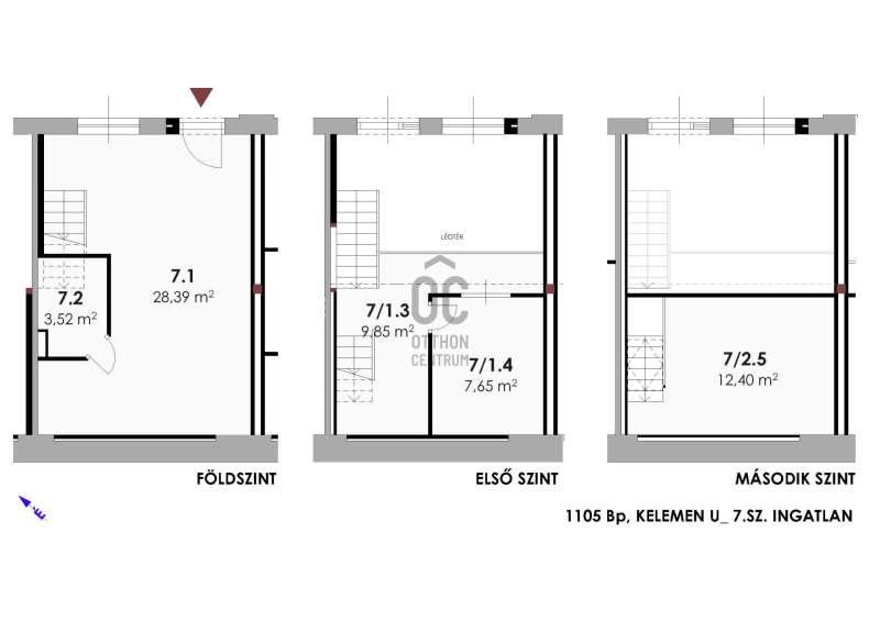
Eladó lakás Budapest X. Óhegy 61m2
1105 Budapest
ID: 65406
29.9 M Ft (490 E Ft/m2)
Terület
61 m2
Hálószobák
4
Ingatlan adatok
Típus: Lakás
Terület: 61 m2
Hálószobák: 4
Építés éve: 20+ éve
Ár: 29 900 000 Ft
Ár/m2: 490 E Ft/m2
Emelet: 1+ emelet
Kilátás az ingatlanból: Belső udvar
Leírás
EGY FALAT LONDON!
Hihetetlen áron, London belvárosát idéző stílusban, belső 3 szintes, 2+2 fél szobás ingatlan, SAJÁT KERTRÉSSZEL!
Alacsony fenntartással, verhetetlen áron vásárolhat nagyobb, teljesen új életteret!
Kap mellé egy életérzést is!
Frissen felújított, Ön lakja elsőnek!
Új gépészet, elektromos hálózat, világítástechnika, nyílászárók,
...
+ Tovább olvasom
Lokáció
1105 Budapest