Nyelv:
Kezdd el!
Eladó
Kiadó
Tulajdonos vagyok
Ingatlanos vagyok
Zoomlla-funkciók
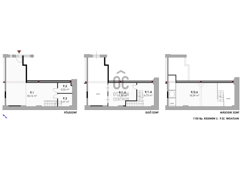
Eladó lakás Budapest X. Óhegy 59m2
1105 Budapest
ID: 65405
27.9 M Ft (473 E Ft/m2)
Terület
59 m2
Hálószobák
4
Ingatlan adatok
Típus: Lakás
Terület: 59 m2
Hálószobák: 4
Építés éve: 20+ éve
Ár: 27 900 000 Ft
Ár/m2: 473 E Ft/m2
Emelet: 1+ emelet
Kilátás az ingatlanból: Belső udvar
Leírás
Hihetetlen áron, Provance hangulatát idéző stílusban, belső 3 szintes, 2+2 FÉL szobás ingatlan, SAJÁT KERTRÉSSZEL!
Alacsony fenntartással, verhetetlen áron vásárolhat nagyobb, teljesen új életteret!
Kap mellé egy életérzést is!
Frissen felújított, Ön lakja be elsőnek!
Új gépészet, elektromos hálózat, világítástechnika, nyílászárók, bejárati ajtó
...
+ Tovább olvasom
Lokáció
1105 Budapest