Nyelv:
Kezdd el!
Eladó
Kiadó
Tulajdonos vagyok
Ingatlanos vagyok
Zoomlla-funkciók
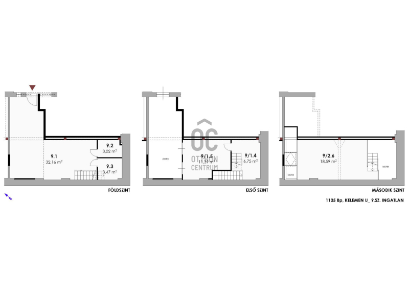
Eladó lakás Budapest X. Óhegy 73m2
1105 Budapest
ID: 65404
31.9 M Ft (437 E Ft/m2)
Terület
73 m2
Hálószobák
4
Ingatlan adatok
Típus: Lakás
Terület: 73 m2
Hálószobák: 4
Építés éve: 20+ éve
Ár: 31 900 000 Ft
Ár/m2: 437 E Ft/m2
Emelet: 1+ emelet
Kilátás az ingatlanból: Belső udvar
Leírás
Budapesten élhető terekkel OLCSÓN!!!!

Hihetetlen áron, London belvárosát idéző stílusban, egyedi megoldásokkal, élhető terekkel, belső 3 szintes, 3+2 fél szobás ingatlan, SAJÁT KERTRÉSSZEL!
Alacsony fenntartással, verhetetlen áron vásárolhat nagyobb, teljesen új életteret!
Kap mellé egy életérzést is!
Frissen felújított, Ön lakja be elsőnek!
Új
...
+ Tovább olvasom
Lokáció
1105 Budapest