Nyelv:
Kezdd el!
Eladó
Kiadó
Tulajdonos vagyok
Ingatlanos vagyok
Zoomlla-funkciók
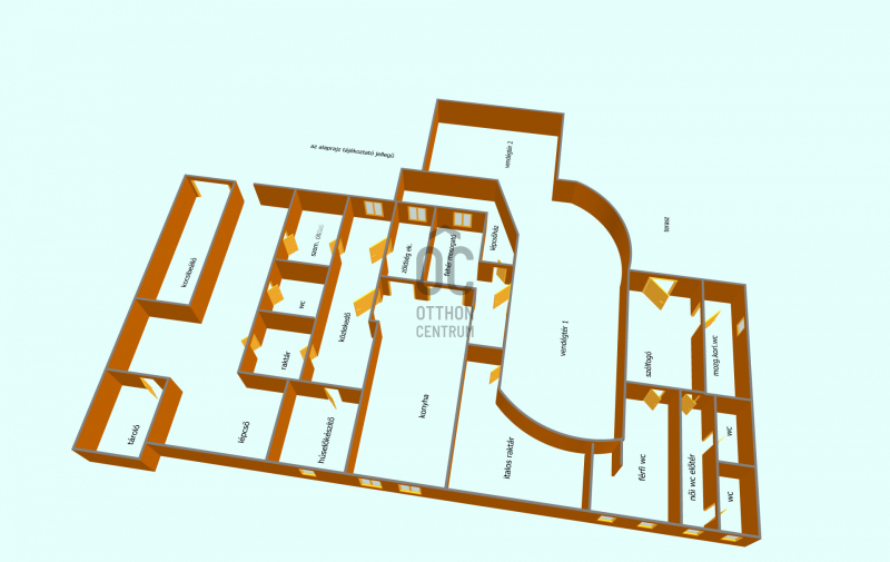
Eladó ház Zirc 350m2
8420 Zirc
ID: 65015
310 M Ft (886 E Ft/m2)
Terület
350 m2
Hálószobák
0
Ingatlan adatok
Típus:
Terület: 350 m2
Hálószobák: 0
Építés éve: 20+ éve
Ár: 310 000 000 Ft
Ár/m2: 886 E Ft/m2
Emelet: Felső szint
Leírás
BEFEKTETŐK, VÁLLALKOZÓK figyelmébe ajánlom ezt a kiváló lehetőséget!

BEJÁRATOTT PIZZÉRIA ,ÉTTEREM
Eladó a Bakony fővárosában Zircen, 1800 nm-es telken, gyönyörű környezetben, terasszal rendelkező pizzéria, étterem, kávézó.
Bejáratott, stabil vendégkörrel és bevétellel rendelkező, 200nm-es étterem konyhai gépekkel, teljes bútorzattal, felszerelésse
...
+ Tovább olvasom
Lokáció
8420 Zirc