Nyelv:
Kezdd el!
Eladó
Kiadó
Tulajdonos vagyok
Ingatlanos vagyok
Zoomlla-funkciók
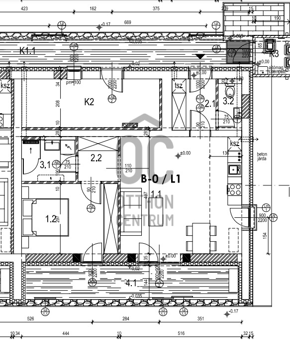
Eladó lakás Komárom 52m2
2900 Komárom
ID: 64852
39.4 M Ft (758 E Ft/m2)
Terület
52 m2
Hálószobák
2
Ingatlan adatok
Típus: Lakás
Terület: 52 m2
Hálószobák: 2
Építés éve: Max. 5 éve
Ár: 39 393 440 Ft
Ár/m2: 758 E Ft/m2
Emelet: 1+ emelet
Kilátás az ingatlanból: Park
Leírás
Projekt bemutatása

Komárom legzöldebb lakóparkja kerül kialakításra a régi Gyermekváros területén, ami a Gyermekváros Lakópark elnevezést kapta.

A lakóparkról:

Összesen 121 lakás található majd a 6 különálló épületben
25 lakáshoz kert is tartozik, aminek bruttó 19.000Forint/nm az ára
Mindegyik lakáshoz vásárolható parkolóhely, illetve közös hasz
...
+ Tovább olvasom
Lokáció
2900 Komárom