Nyelv:
Kezdd el!
Eladó
Kiadó
Tulajdonos vagyok
Ingatlanos vagyok
Zoomlla-funkciók
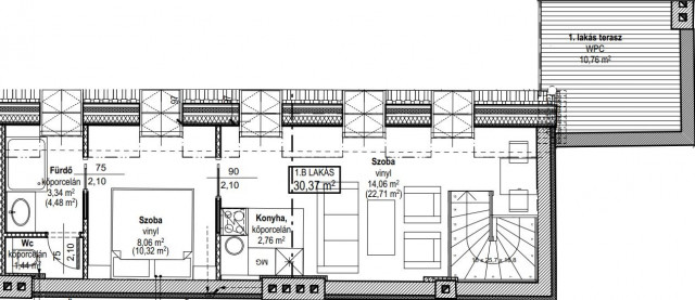
Eladó lakás Budapest VI. 41m2
1061 Budapest, Weiner Leó utca
ID: 64666
70.3 M Ft (1.7 M Ft/m2)
Terület
41 m2
Hálószobák
2
Ingatlan adatok
Típus: Lakás
Terület: 41 m2
Hálószobák: 2
Építés éve: 20+ éve
Ár: 70 300 000 Ft
Ár/m2: 1.7 M Ft/m2
Emelet: 1+ emelet
Kilátás az ingatlanból: Belső udvar
Leírás
Körúton belül, a belváros egyik központi részén, az Oktogon, és a Nyugati pályaudvar között, épül a főváros egyik exkluzív fejlesztése!
Összesen 12 db újépítésű lakás!

A lakások egyedisége egyrészt a régi idők és a modern kor ötvözetében rejlik. Egy klasszikus épület, melynek teljes körű felújítása során, a legfelső szinten 12 modern, tetőterasz
...
+ Tovább olvasom
Lokáció
1061 Budapest, Weiner Leó utca