Nyelv:
Kezdd el!
Eladó
Kiadó
Tulajdonos vagyok
Ingatlanos vagyok
Zoomlla-funkciók
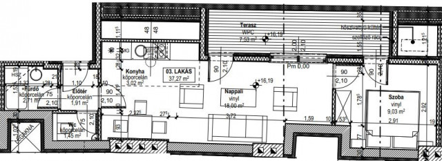
Eladó lakás Budapest VI. 41m2
1061 Budapest, Lázár utca
ID: 64665
102.6 M Ft (2.5 M Ft/m2)
Terület
41 m2
Hálószobák
2
Ingatlan adatok
Típus: Lakás
Terület: 41 m2
Hálószobák: 2
Építés éve: 20+ éve
Ár: 102 590 000 Ft
Ár/m2: 2.5 M Ft/m2
Emelet: 1+ emelet
Leírás
A Szent István Bazilika és az Opera szomszédságában épül a főváros egyik legexkluzívabb fejlesztése.
A lakások egyedisége egyrészt a régi idők és a modern kor ötvözetében rejlik.
Egy klasszikus épület, melynek teljes körű felújítása során, a legfelső szinten, a padlástéren 4 modern, tetőteraszos okos otthon kerül kialakításra.
A Belváros szívében v
...
+ Tovább olvasom
Lokáció
1061 Budapest, Lázár utca