Nyelv:
Kezdd el!
Eladó
Kiadó
Tulajdonos vagyok
Ingatlanos vagyok
Zoomlla-funkciók
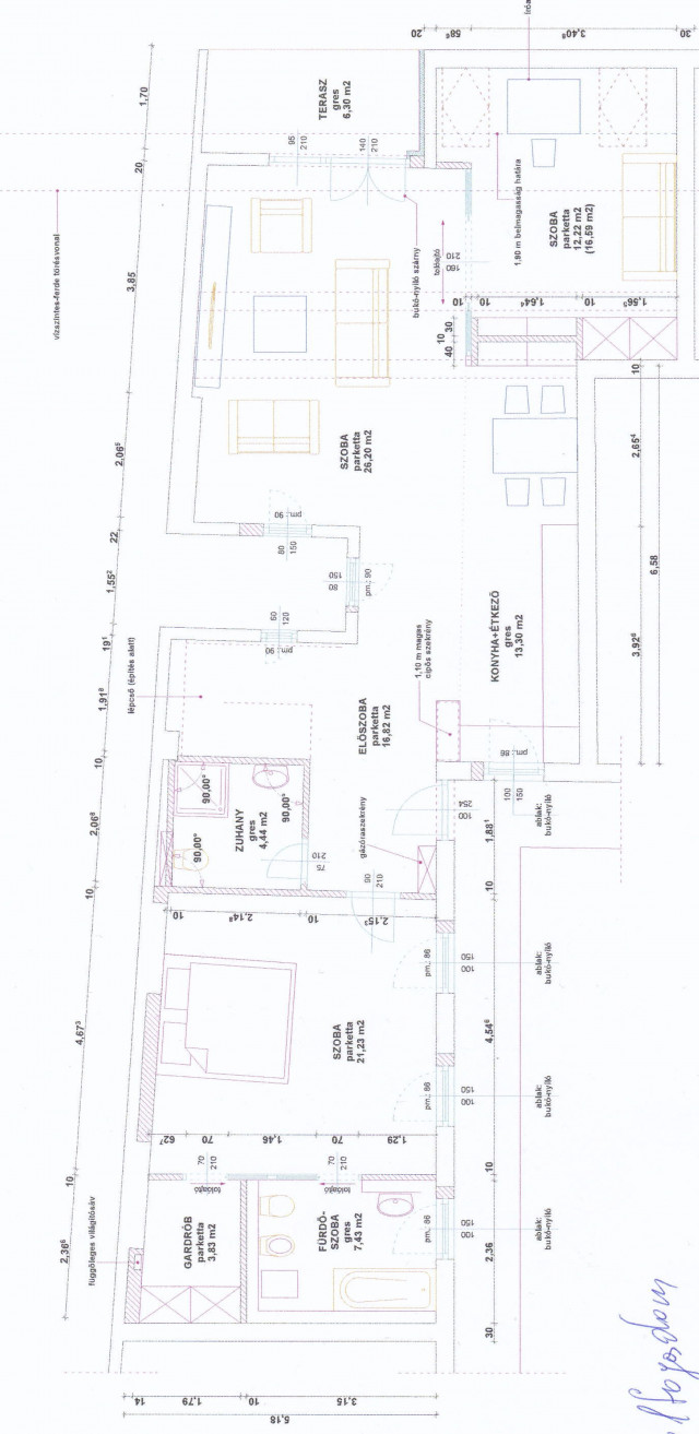
Eladó lakás Budapest VI. 141m2
1067 Budapest, Nyugati tér
ID: 64615
255 M Ft (1.8 M Ft/m2)
Terület
141 m2
Hálószobák
3
Ingatlan adatok
Típus: Lakás
Terület: 141 m2
Hálószobák: 3
Építés éve: 20+ éve
Ár: 255 000 000 Ft
Ár/m2: 1.8 M Ft/m2
Emelet: 1+ emelet
Kilátás az ingatlanból: Város
Leírás
Belváros lüktető ütőerének közvetlen közelében, de mégis csendes mellékutcában ajánljuk figyelmébe ez a kitűnő, napfényes , legfelső emeleti ,tetőteraszos lakást. Ebben az ingatlanban ötvöződik az otthon és a befektetés fogalma. Kialakításának köszönhetően akár egy családnak is megfelelő életteret biztosíthat, két tágas hálószobával és két fürdőszo...
+ Tovább olvasom
Lokáció
1067 Budapest, Nyugati tér