Nyelv:
Kezdd el!
Eladó
Kiadó
Tulajdonos vagyok
Ingatlanos vagyok
Zoomlla-funkciók
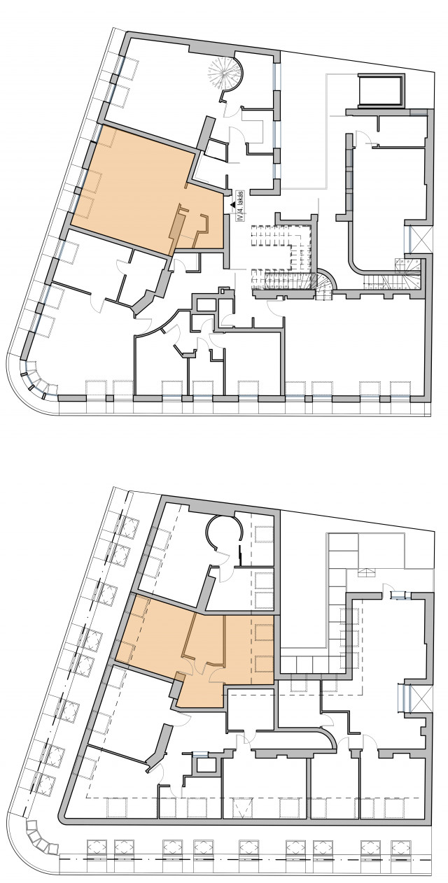
Eladó lakás Budapest V. 105m2
1053 Budapest, Belvárosi Loft
ID: 64600
210 M Ft (2 M Ft/m2)
Terület
105 m2
Hálószobák
2+1
Ingatlan adatok
Típus: Lakás
Terület: 105 m2
Hálószobák: 2+1
Építés éve: 20+ éve
Ár: 210 000 000 Ft
Ár/m2: 2 M Ft/m2
Emelet: 1+ emelet
Kilátás az ingatlanból: Város
Leírás
V. kerület Belvárosi részén, napfényes, magasemeleti luxus lakások kerülnek kialakításra a kivitelezéssel párhuzamosan pedig az épület korhűen megújul és egyidejűleg modern felvonó kerül beépítésre. Összesen 105m2 lakóterülettel rendelkezik ez a remek kéthálószobás, tetőteraszos ingatlan. A bejárati szinten a konyha nappali mellett egy vizes helyis...
+ Tovább olvasom
Lokáció
1053 Budapest, Belvárosi Loft