Nyelv:
Kezdd el!
Eladó
Kiadó
Tulajdonos vagyok
Ingatlanos vagyok
Zoomlla-funkciók
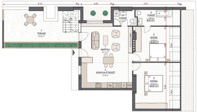
Eladó lakás Budapest VI. 143m2
1066 Budapest, Panoráma projekt 2
ID: 64586
151.3 M Ft (1.1 M Ft/m2)
Terület
143 m2
Hálószobák
3
Ingatlan adatok
Típus: Lakás
Terület: 143 m2
Hálószobák: 3
Építés éve: 20+ éve
Ár: 151 293 000 Ft
Ár/m2: 1.1 M Ft/m2
Emelet: 1+ emelet
Kilátás az ingatlanból: Város
Leírás
Belváros egyik legkeretesebb részén a Bazilika és Operaház közelében kínálunk eladásra új építésű, magas minőségben megépített lakásokat. A négy emeletes eklektikus társasház az emelet ráépítéssel párhuzamosan teljesen megújul, a gépészeti felújításon kívül teljes homlokzati rekonstrukció mellett új 8 személyes felfonó kerül beépítésre a cselédlépc...
+ Tovább olvasom
Lokáció
1066 Budapest, Panoráma projekt 2