Nyelv:
Kezdd el!
Eladó
Kiadó
Tulajdonos vagyok
Ingatlanos vagyok
Zoomlla-funkciók
Eladó ház Nyírbogdány 530m2
4511 Nyírbogdány
ID: 64509
85 M Ft (160 E Ft/m2)
Terület
530 m2
Hálószobák
0
Ingatlan adatok
Típus:
Terület: 530 m2
Hálószobák: 0
Építés éve: 20+ éve
Ár: 85 000 000 Ft
Ár/m2: 160 E Ft/m2
Emelet: Felső szint
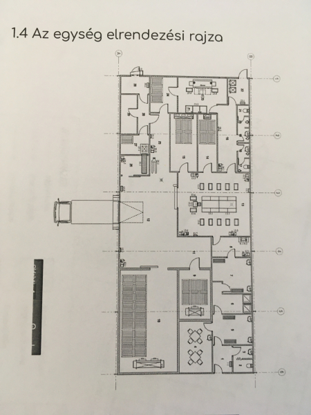
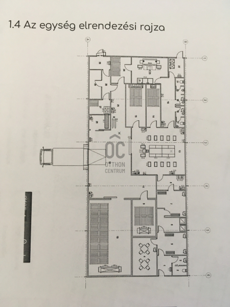
Leírás
Megvételre kínálok Nyírbogdányban a 4. számú főút mellett egy 2023 -ban épült, újszerű állapotú, 530 nm-es, két csarnokból álló ipari létesítményt 15434 nm-es (1.5434 Ha) telken. A kisebb épület trapézlemezből készült, 130 nm-es, (8.3 x 16 m) a vizet és az áramot bevezették nem fűthető, egy bejárata van, fő funkció a raktározás. A nagyobb 420 nm -e...
+ Tovább olvasom
Lokáció
4511 Nyírbogdány