Nyelv:
Kezdd el!
Eladó
Kiadó
Tulajdonos vagyok
Ingatlanos vagyok
Zoomlla-funkciók
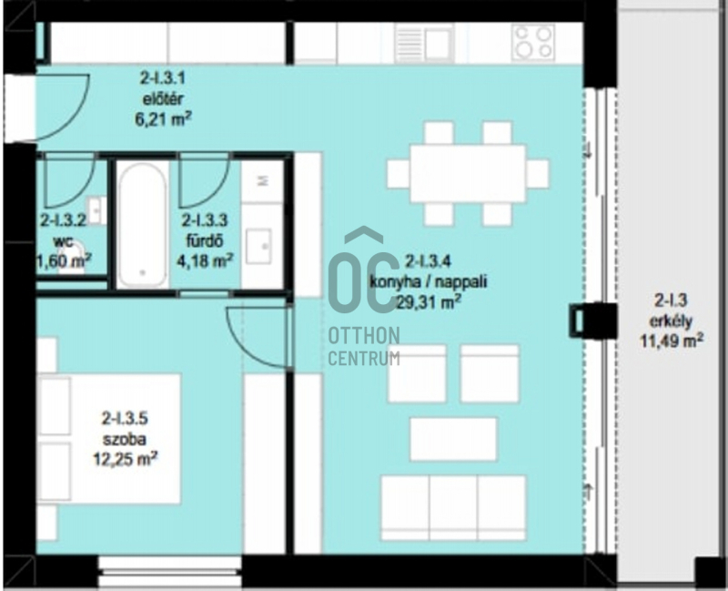
Eladó ház Balatonfenyves 59m2
8646 Balatonfenyves
ID: 64457
72.9 M Ft (1.2 M Ft/m2)
Terület
59 m2
Hálószobák
2
Ingatlan adatok
Típus:
Terület: 59 m2
Hálószobák: 2
Építés éve: Max. 5 éve
Ár: 72 900 000 Ft
Ár/m2: 1.2 M Ft/m2
Emelet: 1+ emelet
Kilátás az ingatlanból: Park
Leírás
Az alábbi ingatlan hirdetés célja, hogy családosok, befektetők számára bemutasson egy kivételes lehetőséget Balatonfenyvesen, ahol a modern életstílus és a természet közelsége egyesül.
Ez az új, 59 négyzetméteres lakás ideális választás lehet azok számára, akik egy kényelmes, világos otthonra vágynak, ahol a prémium kivitelezés és a modern technol
...
+ Tovább olvasom
Lokáció
8646 Balatonfenyves