Nyelv:
Kezdd el!
Eladó
Kiadó
Tulajdonos vagyok
Ingatlanos vagyok
Zoomlla-funkciók
Eladó lakás Debrecen Belváros 72m2
4026 Debrecen
ID: 64382
130 M Ft (1.8 M Ft/m2)
Terület
72 m2
Hálószobák
3
Ingatlan adatok
Típus: Lakás
Terület: 72 m2
Hálószobák: 3
Építés éve: Max. 5 éve
Ár: 130 000 000 Ft
Ár/m2: 1.8 M Ft/m2
Emelet: 1+ emelet
Kilátás az ingatlanból: Belső udvar
Leírás
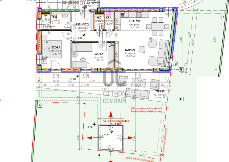
Ez az ingatlan a földszinten helyezkedik el.
71,52 m2 alapterületű + 31 m2 - es terasz + 340 m2 udvar tartozik hozzá
Helyiségei : konyha - étkező - nappali + 2 szobás, külön fürdő , wc
Projekt bemutatása

Debrecen belvárosában, 9 lakásos társasház épül, de 12 lakás lesz kialakítva.
A tervezésnél a tágas terek, ésszerű kialakítás, erkélyek, teraszok
...
+ Tovább olvasom
Lokáció
4026 Debrecen