Nyelv:
Kezdd el!
Eladó
Kiadó
Tulajdonos vagyok
Ingatlanos vagyok
Zoomlla-funkciók
Eladó ház Debrecen Belváros 116m2
4029 Debrecen
ID: 64304
77 M Ft (664 E Ft/m2)
Terület
116 m2
Hálószobák
0
Ingatlan adatok
Típus:
Terület: 116 m2
Hálószobák: 0
Építés éve: 20+ éve
Ár: 77 000 000 Ft
Ár/m2: 664 E Ft/m2
Emelet: Felső szint
Leírás
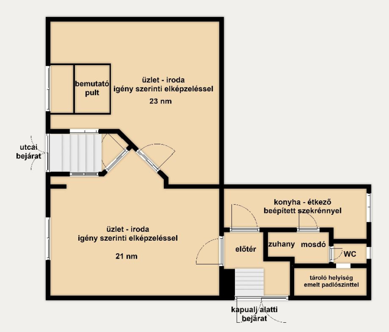
Belváros, Cegléd-Lorántffy utca sarkon eladó utcafronti üzlethelyiség szuterén üzletrésszel.

Utcafronti rész jellemzői:
- kettő helyiség 21 és 23 nm, üzlet, iroda, bemutató terem vagy bármilyen más célra igény szerint
- szociális helyiségek, előszoba, konyha-étkező, mosdó-WC-zuhanyzó
- minden helyiség járólapos, fa nyílászárós hő és hangszigetelt
...
+ Tovább olvasom
Lokáció
4029 Debrecen