Nyelv:
Kezdd el!
Eladó
Kiadó
Tulajdonos vagyok
Ingatlanos vagyok
Zoomlla-funkciók
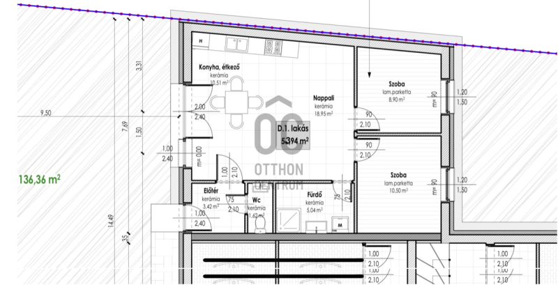
Eladó lakás Debrecen 54m2
4031 Debrecen
ID: 64278
53.5 M Ft (991 E Ft/m2)
Terület
54 m2
Hálószobák
3
Ingatlan adatok
Típus: Lakás
Terület: 54 m2
Hálószobák: 3
Építés éve: Max. 5 éve
Ár: 53 500 000 Ft
Ár/m2: 991 E Ft/m2
Emelet: 1+ emelet
Kilátás az ingatlanból: Belső udvar
Leírás
Projekt bemutatása

PRÉMIUM MINŐSÉG ELÉRHETŐ ÁRON!

Debrecen nyugati városrészén, - Hatvan utcai kertben, közel NULLA energiaigényű társasházi lakások eladók!
Kivitelezés kezdete. 2024.III. negyedév
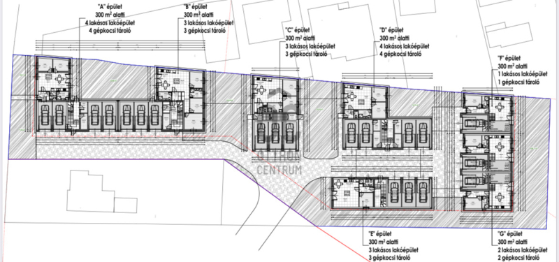
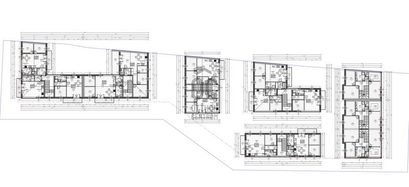
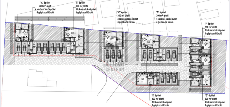
A 21 lakást magában foglaló 6 tömbből álló épület, modern, letisztult vonalaival elegáns megjelenésével, jól átgondolt belső elrendezésének köszönhet
...
+ Tovább olvasom
Lokáció
4031 Debrecen