Nyelv:
Kezdd el!
Eladó
Kiadó
Tulajdonos vagyok
Ingatlanos vagyok
Zoomlla-funkciók
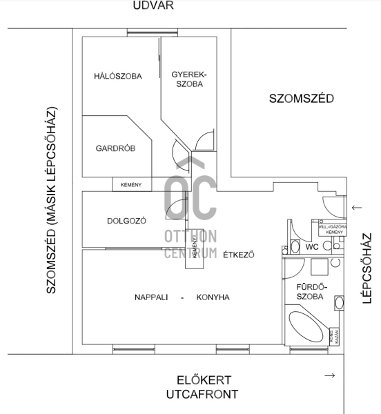
Eladó lakás Debrecen 69m2
4029 Debrecen
ID: 64115
49.9 M Ft (723 E Ft/m2)
Terület
69 m2
Hálószobák
4
Ingatlan adatok
Típus: Lakás
Terület: 69 m2
Hálószobák: 4
Építés éve: 20+ éve
Ár: 49 900 000 Ft
Ár/m2: 723 E Ft/m2
Emelet: 1+ emelet
Kilátás az ingatlanból: Város
Leírás
Debrecenben a Hajnal utcán értékesítésre kínálunk egy 69 m2-es, téglaépítésű, magasföldszinten elhelyezkedő, átalakított és TELJES FELÚJÍTÁSON átesett társasházi lakást!
Kisebb ingatlan csere értékegyeztetéssel beszámítható!

Az ingatlan főbb paraméterei:
- Az ingatlant pár éve TELJESKÖRŰEN felújították
- megtörtént a villanyvezetékek cseréje, a f
...
+ Tovább olvasom
Lokáció
4029 Debrecen