Nyelv:
Kezdd el!
Eladó
Kiadó
Tulajdonos vagyok
Ingatlanos vagyok
Zoomlla-funkciók
Eladó lakás Debrecen 81m2
4031 Debrecen
ID: 64013
92 M Ft (1.1 M Ft/m2)
Terület
81 m2
Hálószobák
4
Ingatlan adatok
Típus: Lakás
Terület: 81 m2
Hálószobák: 4
Építés éve: Max. 5 éve
Ár: 92 000 000 Ft
Ár/m2: 1.1 M Ft/m2
Emelet: 1+ emelet
Kilátás az ingatlanból: Belső udvar
Leírás
Projekt bemutatása

AZONNAL KÖLTÖZHETŐ!!!
PRÉMIUM MINŐSÉGŰ, ÚJ ÉPÍTÉSŰ LAKÁSOK ELADÓK!
A LAKÁSOK KULCSRAKÉSZ ÁLLAPOTÚAK, HASZNÁLATBAVÉTELI ENGEDÉLY VAN!

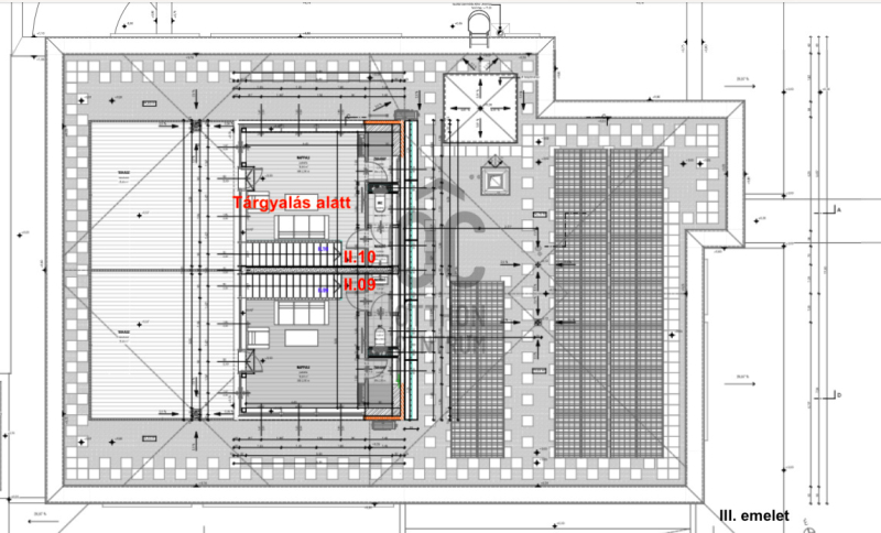
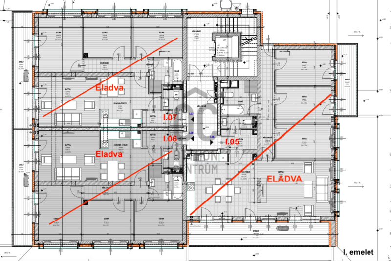
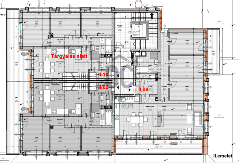
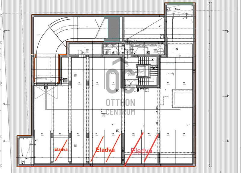
Debrecen kedvelt városrészén, központhoz közeli csendes, zöld övezetben, magas műszaki tartalommal rendelkező, jó elrendezésű, 9 lakóegységből álló, liftes társasházi lakások eladók.
Az ingatlanok
...
+ Tovább olvasom
Lokáció
4031 Debrecen