Nyelv:
Kezdd el!
Eladó
Kiadó
Tulajdonos vagyok
Ingatlanos vagyok
Zoomlla-funkciók
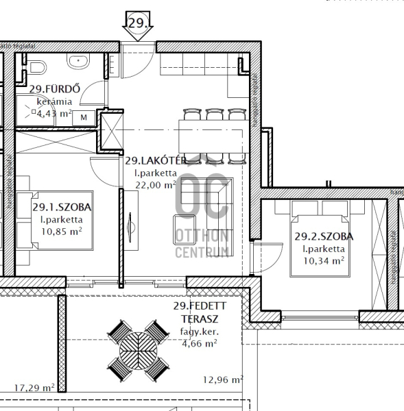
Eladó lakás Gárdony 52m2
2483 Gárdony
ID: 63829
55.1 M Ft (1.1 M Ft/m2)
Terület
52 m2
Hálószobák
3
Ingatlan adatok
Típus: Lakás
Terület: 52 m2
Hálószobák: 3
Építés éve: Max. 5 éve
Ár: 55 083 000 Ft
Ár/m2: 1.1 M Ft/m2
Emelet: Felső szint
Kilátás az ingatlanból: Belső udvar
Leírás
Gárdony-Agárdon az Agárdi Termálfürdőhöz közel, csendes, zöldövezeti területen, három szintes, HŐSZIVATTYÚS fűtés-hűtéssel, LIFTTEL ellátott téglaépületben, 2. EMELETI, 3 szobás, NAGY erkélyes (12,97 m2), 52,46 m2 hasznos lakóterű (bruttó 65,97 m2), K-i tájolású, ÚJ ÉPÍTÉSŰ, alacsony rezsijű, elhelyezkedésű lakása eladó, közös tárolóval.
A lakásho
...
+ Tovább olvasom
Lokáció
2483 Gárdony