Nyelv:
Kezdd el!
Eladó
Kiadó
Tulajdonos vagyok
Ingatlanos vagyok
Zoomlla-funkciók
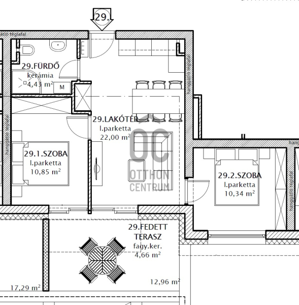
Eladó lakás Gárdony 43m2
2483 Gárdony
ID: 63828
45.4 M Ft (1.1 M Ft/m2)
Terület
43 m2
Hálószobák
2
Ingatlan adatok
Típus: Lakás
Terület: 43 m2
Hálószobák: 2
Építés éve: Max. 5 éve
Ár: 45 349 000 Ft
Ár/m2: 1.1 M Ft/m2
Emelet: Felső szint
Kilátás az ingatlanból: Belső udvar
Leírás
Gárdony-Agárdon az Agárdi Termálfürdőhöz közel, csendes, zöldövezeti területen, három szintes, HŐSZIVATTYÚS fűtés-hűtéssel, LIFTTEL ellátott téglaépületben, 2. EMELETI, nappali + 2 szobás, NAGY teraszos (17,29 m2), 43,19 m2 hasznos lakóterű (bruttó 58,53 m2), DNY-i tájolású, ÚJ ÉPÍTÉSŰ, alacsony rezsijű, elhelyezkedésű lakása eladó, közös tárolóval...
+ Tovább olvasom
Lokáció
2483 Gárdony