Nyelv:
Kezdd el!
Eladó
Kiadó
Tulajdonos vagyok
Ingatlanos vagyok
Zoomlla-funkciók
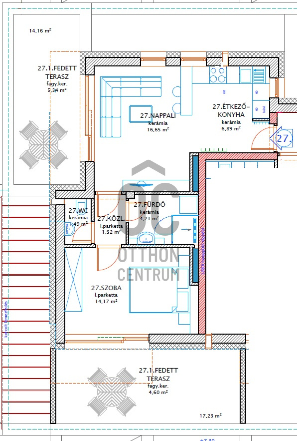
Eladó lakás Gárdony 56m2
2483 Gárdony
ID: 63825
58.6 M Ft (1 M Ft/m2)
Terület
56 m2
Hálószobák
2
Ingatlan adatok
Típus: Lakás
Terület: 56 m2
Hálószobák: 2
Építés éve: Max. 5 éve
Ár: 58 643 000 Ft
Ár/m2: 1 M Ft/m2
Emelet: Felső szint
Kilátás az ingatlanból: Park
Leírás
Gárdony-Agárdon az Agárdi Termálfürdőhöz közel, csendes, zöldövezeti területen, három szintes, HŐSZIVATTYÚS fűtés-hűtéssel, LIFTTEL ellátott téglaépületben, 2. EMELETI, 2 szobás, 2 db NAGY teraszos (14,16 m2 + 17,23 m2), 55,85 m2 hasznos lakóterű (bruttó 81,43 m2), K-i tájolású, ÚJ ÉPÍTÉSŰ, alacsony rezsijű, elhelyezkedésű lakása eladó, közös tárol...
+ Tovább olvasom
Jellemzők
  • Erkély
Lokáció
2483 Gárdony