Nyelv:
Kezdd el!
Eladó
Kiadó
Tulajdonos vagyok
Ingatlanos vagyok
Zoomlla-funkciók
Eladó lakás Gárdony 59m2
2483 Gárdony
ID: 63821
62.2 M Ft (1.1 M Ft/m2)
Terület
59 m2
Hálószobák
3
Ingatlan adatok
Típus: Lakás
Terület: 59 m2
Hálószobák: 3
Építés éve: Max. 5 éve
Ár: 62 181 000 Ft
Ár/m2: 1.1 M Ft/m2
Emelet: 1+ emelet
Kilátás az ingatlanból: Park
Leírás
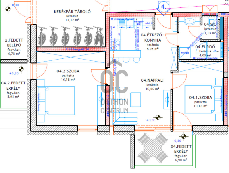
Földszinti, 2 FEDETT TERASZOS, 3 szobás LAKÁS, új építésű!
Gárdony-Agárdon az Agárdi Termálfürdőhöz közel, csendes, zöldövezeti területen, három szintes, HŐSZIVATTYÚS fűtés-hűtéssel, LIFTTEL ellátott téglaépületben, FÖLDSZINTI, 3 szobás, 2 fedett TERASZOS (1 NAGY 6,9 m2-es és 1 kisebb, 3,93 m2-es) 59,22 m2 hasznos lakóterű (bruttó 70,021 m2), K-i t
...
+ Tovább olvasom
Jellemzők
  • Erkély
Lokáció
2483 Gárdony