Nyelv:
Kezdd el!
Eladó
Kiadó
Tulajdonos vagyok
Ingatlanos vagyok
Zoomlla-funkciók
Eladó lakás Székesfehérvár Belvá..
8000 Székesfehérvár
ID: 63776
94.9 M Ft (1.3 M Ft/m2)
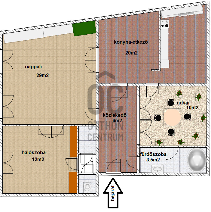
Terület
73 m2
Hálószobák
2
Ingatlan adatok
Típus: Lakás
Terület: 73 m2
Hálószobák: 2
Építés éve: 20+ éve
Ár: 94 900 000 Ft
Ár/m2: 1.3 M Ft/m2
Emelet: 1+ emelet
Kilátás az ingatlanból: Város
Leírás
Belvárosi macskakövön, meghitt esti sétát tenne, megnyugtató, autómentes környezetben?
Magába szívhatja az elmúlt kor egy részét és leporolhatja elfeledett történelmünk darabkáit.
VAGY!
Egy családi-, vagy baráti társasággal összeülve, finom bort kortyolgathat és éjszakába nyúlóan beszélgethet egy meghitt belvárosi teraszon ülve.
Beköltözhet minden
...
+ Tovább olvasom
Lokáció
8000 Székesfehérvár