Language:
Let's Start!
Buy
Rent
Sell or let
I'm an agent
Our features
Eladó ház Budapest XII. Magasút 131..
1121 Budapest, Ördögszikla köz
ID: 63396
198 M Ft (150 E Ft/m2)
Area
1316 m2
Bedrooms
0
Property Details
Type:
Area: 1316 m2
Bedrooms: 0
Year Built: 20+ years old
Price: 198 000 000 Ft
Price/m2: 150 E Ft/m2
Floor: Top-floor
Description
Kizárólag Irodánk kínálatában!



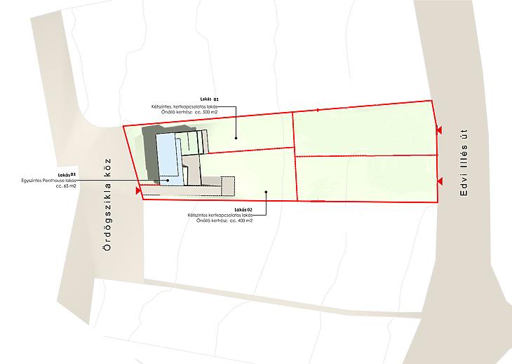
Eladó a XII. kerületben, az Ördögszikla közben egy 1316 nm -es, panorámás telek.



A telek besorolása Lke -3/D-6, 15% -os beépíthetőséggel és 0,25 - ös szintterületi mutatóval, az engedett építménymagasság 6,5 m.

A telekhez készült látványterveken a felső, 3 lakásos ház tartozik a szóban forgó telekhez.



Felmer
...
+ Read more
Location
1121 Budapest, Ördögszikla köz