Nyelv:
Kezdd el!
Eladó
Kiadó
Tulajdonos vagyok
Ingatlanos vagyok
Zoomlla-funkciók
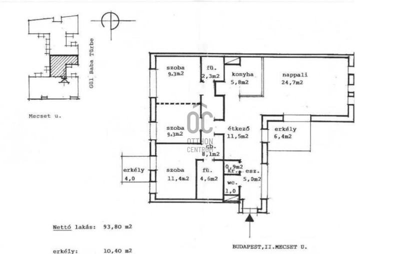
Eladó lakás Budapest II. Rózsadomb ..
1023 Budapest
ID: 62927
196 M Ft (2.1 M Ft/m2)
Terület
94 m2
Hálószobák
4
Ingatlan adatok
Típus: Lakás
Terület: 94 m2
Hálószobák: 4
Építés éve: Max. 20 éve
Ár: 196 000 000 Ft
Ár/m2: 2.1 M Ft/m2
Emelet: Felső szint
Kilátás az ingatlanból: Város
Leírás
***CSAK BEFEKTETŐKNEK***

II. kerület Rózsadombon ELADÓ, nettó 94 nm , bruttó 99 nm-es , nappali + 3 hálós ,dupla komfortos erkélyes lakás ( + 10 nm,a két 2 erkély ) ,2006-ben épült ház, II. emeletén,
szép kilátással a Gül Baba Türbe rózsakertjére.
Tökéletes LOKÁCIÓ, CSEND, TISZTASÁG, ZÖLDBEN élni és mindent gyalogosan is könnyedén elérni.
A 4-6
...
+ Tovább olvasom
Jellemzők
  • Erkély
Lokáció
1023 Budapest