Nyelv:
Kezdd el!
Eladó
Kiadó
Tulajdonos vagyok
Ingatlanos vagyok
Zoomlla-funkciók
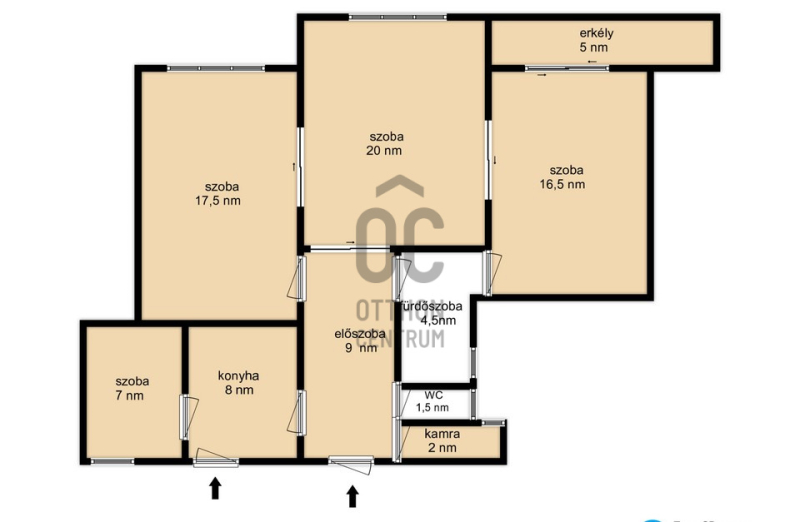
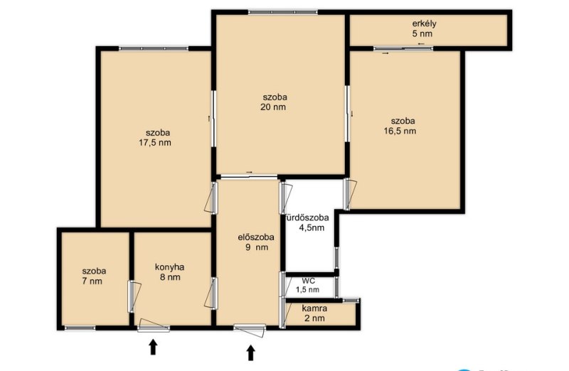
Eladó lakás Budapest VIII. 85m2
1082 Budapest
ID: 62897
69.9 M Ft (822 E Ft/m2)
Terület
85 m2
Hálószobák
4
Ingatlan adatok
Típus: Lakás
Terület: 85 m2
Hálószobák: 4
Építés éve: 20+ éve
Ár: 69 900 000 Ft
Ár/m2: 822 E Ft/m2
Emelet: Felső szint
Kilátás az ingatlanból: Város
Leírás
Erkélyes ingatlan a Losonci negyedben a Horváth Mihály térnél

- 85 nm-es, 4 szobás lakás , lakható, igény szerint felújítandó
- két bejárata van, könnyen két lakássá alakítható
- gázkonvektor fűtés, az egyik szobában klíma is van
- jó közlekedés, a közelben buszmegálló (9-es busz, 83-as, és 72-es troli), de a 4-6 villamos is 9 perc séta
- a közel
...
+ Tovább olvasom
Jellemzők
  • Erkély
Lokáció
1082 Budapest