Nyelv:
Kezdd el!
Eladó
Kiadó
Tulajdonos vagyok
Ingatlanos vagyok
Zoomlla-funkciók
Eladó lakás Budapest X. 56m2
1107 Budapest
ID: 62879
44.9 M Ft (802 E Ft/m2)
Terület
56 m2
Hálószobák
2
Ingatlan adatok
Típus: Lakás
Terület: 56 m2
Hálószobák: 2
Építés éve: 20+ éve
Ár: 44 900 000 Ft
Ár/m2: 802 E Ft/m2
Emelet: Felső szint
Kilátás az ingatlanból: Város
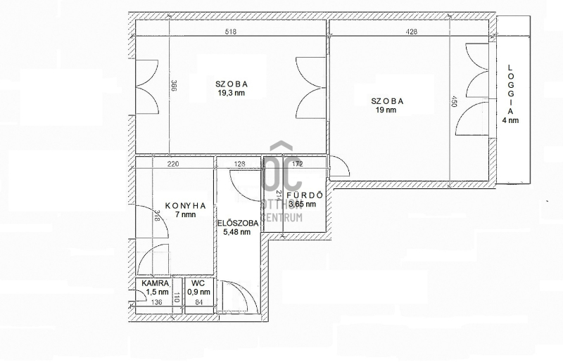
Leírás
X.ker. Pöttyös utcai metró közelében, az Üllői úton eladó ingatlan.
- 56 nm,
- 2 szobás,
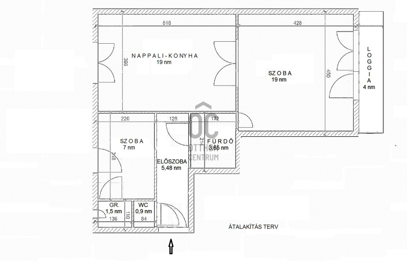
- 1+ 2 szobássá alakítható,
- erkélyes ( 4,5 nm ) ,
- 1. emeleti,
- liftes,
- világos,
- jó állapotú,
- konyha gépesítése, bútorozása szükséges,
- 280 cm belmagasság,
- egy szoba utcára néző,
- egy szoba csendes parkra néző,
Pár perc alatt elérhető óvoda,
...
+ Tovább olvasom
Jellemzők
  • Erkély
Lokáció
1107 Budapest