Nyelv:
Kezdd el!
Eladó
Kiadó
Tulajdonos vagyok
Ingatlanos vagyok
Zoomlla-funkciók
Eladó lakás Budapest VI. Nagykörút..
1061 Budapest
ID: 62864
396.6 M Ft (3.4 M Ft/m2)
Terület
115 m2
Hálószobák
5
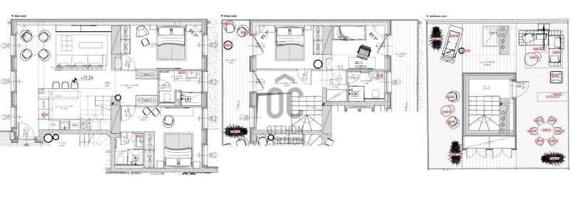
Ingatlan adatok
Típus: Lakás
Terület: 115 m2
Hálószobák: 5
Építés éve: Max. 10 éve
Ár: 396 588 000 Ft
Ár/m2: 3.4 M Ft/m2
Emelet: 1+ emelet
Kilátás az ingatlanból: Város
Leírás
ELHELYEZKEDÉS:
Amikor valaki kimondja, hogy "a legpestibb utca", akkor sokan azonnal rávágják, hogy igen, ez bizony a Király utca, merthogy Krúdy Gyula egy ilyen állandó jelzővel látta el egyik kedvenc utcáját.
A helyiek és turisták körében egyaránt népszerű kulturális lehetőségek, valamint számos történelmi emlékhely karnyújtásnyi közelségben talá
...
+ Tovább olvasom
Lokáció
1061 Budapest