Nyelv:
Kezdd el!
Eladó
Kiadó
Tulajdonos vagyok
Ingatlanos vagyok
Zoomlla-funkciók
Eladó lakás Budapest VII. 62m2
1074 Budapest
ID: 62858
79.7 M Ft (1.3 M Ft/m2)
Terület
62 m2
Hálószobák
3
Ingatlan adatok
Típus: Lakás
Terület: 62 m2
Hálószobák: 3
Építés éve: Max. 5 éve
Ár: 79 700 000 Ft
Ár/m2: 1.3 M Ft/m2
Emelet: Felső szint
Kilátás az ingatlanból: Belső udvar
Leírás
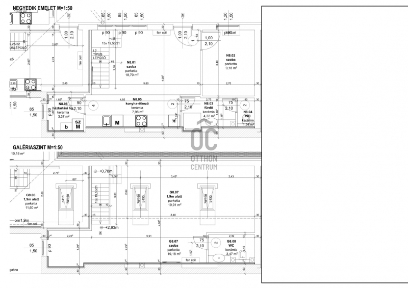
VII.New York Kávéházhoz közel, liftes társasház legfelső 4. emeletén új építésű belső kétszintes, modern lakás eladó.

-nettó 67,5nm, bruttó 87,4nm.
-alsó szint: 1 nappali, 1 háló, fürdőszoba+Wc, konyha étkezővel, háztartási helyiség,
-emelet: 1 hálószoba, 1 mosdó, gardrób helyiség.

- Igényes kivitelezés,
- Hűtő-fűtő klíma,
- csendes, világos
- be
...
+ Tovább olvasom
Lokáció
1074 Budapest